EasyManua.ls Logo

Lennox LGT092H4E

Lennox LGT092H4E
61 pages
To Next Page IconTo Next Page
To Next Page IconTo Next Page
To Previous Page IconTo Previous Page
To Previous Page IconTo Previous Page
Loading...

YEL
BLK
DRNWR
BRN
BLU
PNK
GRY
BLU
BLU
BLU
YEL
YEL
YEL
RED−BLK
BLU
GRY
ORN
WB019
PNK
WB−020
PNK
12
12 34
1
2
4
5
1
3
234
2356
1
PNK
2
3
4
5
ORN
6
7
8
YEL
1
2
1
2
1
BLU
2
1
2
C
460V
1
2
3
4
5
6
1
GRY
2
1
2
1
2
1
2
3
4
5
6
1
2
1
2
GRY
1
WB−001
23
RED−BLK
BLU
GRY
GRY
RED−BLK
YEL
RED
YEL
GRY
GRY
GRY
GRY
BLU
RED−BLK
RED−BLK
GRY
ORN
BLU
BLU
1
WB−002
12
2
1
2
1
3
2
GRY
RED−BLK
GRY
RED
RED
PNK
123
BLU
PNK
YEL
ORN
GRY
123
P48
1
2
BLU
GRY
7
6
123
DRNWR
BRN
BLK
BLU
ORN
34
1
1
2
3
PNK
PNK
BLU
YEL
ORN
BLU
PNK
PNK
YEL
4
PNK
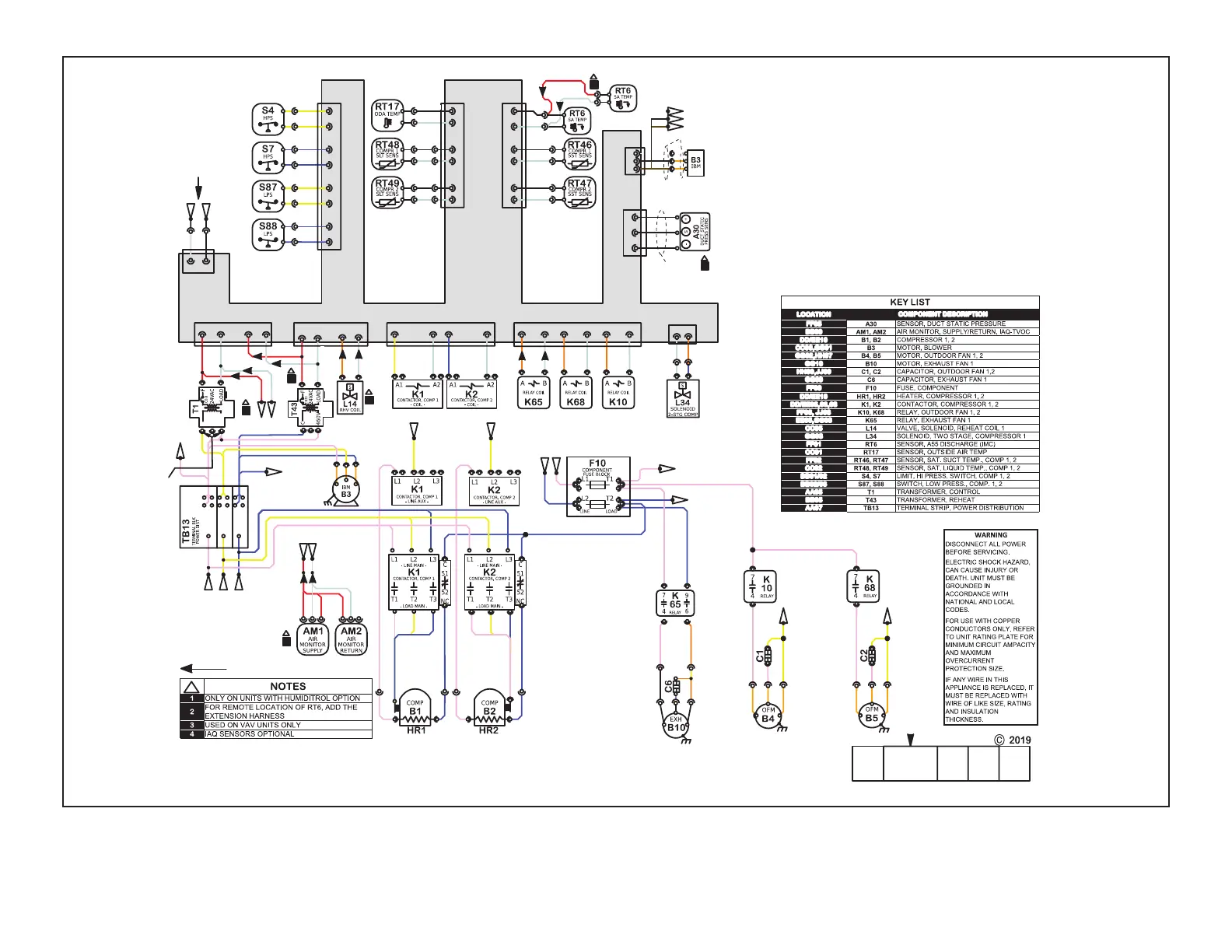
Cooling Diagram with Higher SCCR
Product:LCT, LGT B Box − G VOLT
Form No:
Voltage:460V/3~/60Hz (G)
Rev:
0
GRY
BLU
BLU
PNK
YEL
YEL
RED
PNK
GRY
REDRED
1
3
1
2
WHT
BLK
PNK
PNK
GRY
GRY
YEL
RED
BLU
PNK
BLU
BLU
1
2
YEL
PNK
1
2
BLU
YEL
ORN
GRY
PNK
465
WB019
GRY
WB020
YEL
YEL
WB001
WB−002
PNK
YEL
YEL
BLU
RED
GRY
RED
FROM T1
LOCAA05
J378
P378
A55
MAIN CTRL
24VAC
GND
24VAC
GND
GND
L14
24VAC
GND
J394
P394
J395
P395
COMP1
GND
COMP2
GND
J389
P389
J390
P390
K68
GND
TO A3 P374−1
ON GASUNITONLY
HPSW1
P388
J388
24VAC
GND
HPSW2
24VAC
LPSW1
24VAC
LPSW2
24VAC
24VAC
P385
J385
RT17
GND
RT48
GND
RT49
A30
GND
J382
P382
RT6
GND
RT46
GND
RT47
GND
FIELD
PROVIDED
WIRING
3
UVC−LIGHT
POWER:
USEDUAL
CONNECTOR
PROVIDED
IN KIT.
SEEIAQ
DIAGRAM.
2
GND
K65
TOP
L3L2L1
BOTTOM
SEE POWER ENTRY
DIAGRAMINDISCONNECT
BOXFOR DETAILS
P24
P18
P132
K10
GND
TO A3
B6−2
ON GAS
UNIT ONLY
TO F10
LINE.L1
TO F10.LINE.L2
P86
53817601
WI RI NG
DI AG RAM
FLOW
SECTI ON
A
HEATI NG
SECTI ON
B
COOLI NGCOOLI NG
SECTI ON
B3
SECTI ON
C
ACCS
SECTI ON
D
ACCS
P86
FROM TB13
LOAD LI.T
FROM TB13
LOAD L3.T
J391
P391
L34
GND
SHIELDED CABLE
TWISTEDPAIR
P
4
1
3
J
4
1
3
TO A3 ON
GASUNITS.
REFA−SECT
LOCCC01−02
A
B
G
4
4
DENOTESOPTIONALCOMPONENT S AND WIRING
TO B4 OFM
1
J392
P392
OPTIONAL IONIZER
WIRING. SEEIAQ
WIRINGDIAGRAM
WB−033
WB−032
P426
TO AM1/AM2
LOCBB07
1
TO B5 OFM
TO K1 CONTACTOR
TO K2 CONTACTOR
P426
P426

Related product manuals