EasyManua.ls Logo

Lennox LGT092H4E

Lennox LGT092H4E
61 pages
To Next Page IconTo Next Page
To Next Page IconTo Next Page
To Previous Page IconTo Previous Page
To Previous Page IconTo Previous Page
Loading...

YEL
DRNWR
BLK
DRNWR
BRN
BLU
PNK
BLU
PNK
BLU
PNK
WB019
PNK
WB020
PNK
PNK
1
2
12 34
1
2
4
5
1
3
234
2356
1
PNK
2
3
4
5
ORN
6
7
8
YEL
1
2
1
2
1
BLU
2
1
2
1
2
3
4
5
6
1
2
1
2
1
2
1
2
3
4
5
6
1
2
1
2
1
WB001
2
3
YEL
GRY
PNK
REDBLK
BLU
GRY
GRY
RED−BLK
YEL
RED
BLU
YEL
GRY
RED−BLK
GRY
GRY
GRY
BLU
RED−BLK
RED−BLK
GRY
ORN
BLU
GRY
BLU
GRY
ORN
1
GRY
WB−002
12
2
1
2
1
3
2
GRY
RED−BLK
GRY
RED
RED
ORN
GRY
PNK
123
P48
1
2
7
6
123
BRN
BLK
34
1
1
2
3
PNK
PNK
YEL
ORN
BLU
1
3
1
2
WHT
BLK
PNK
PNK
PNK
YEL
4
PNK
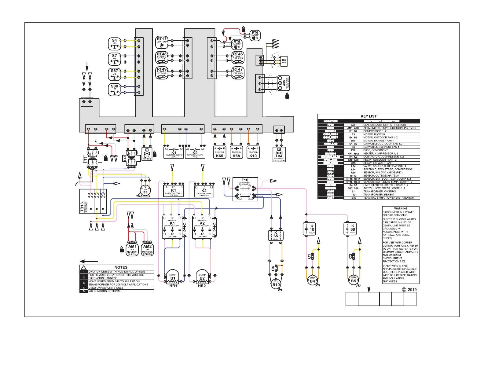
Cooling Diagram with Higher SCCR
Product:LCT, LGTB Box − Y VOLT Voltage:208−230V/3~/60Hz (Y)
Rev:0
BLU
YEL
RED
GRY
ORN
BLU
YEL
PNK
PNK
PNK
GRY
GRY
BLU
BLU
YEL
RED
BLU
GRY
GRY
YEL
REDRED
BLU
YEL
YEL
YEL
BLU
123
PNK
2
1
2
1
ORN
GRY
465
WB−019
GRY
WB−020
YEL
YEL
YEL
BLU
YEL
YEL
WB−001
BLU
WB−002
PNK
PNK
BLU
RED
GRY
RED
FROMT1
LOC AA05
J378
P378
A55
MAIN CTRL
24VAC
GND
24VAC
GND
GND
L14
24VAC
GND
J394
P394
J395
P395
COMP1
GND
COMP2
GND
J389
P389
J390
P390
K68
GND
HPSW1
P388
J388
24VAC
GND
HPSW2
24VAC
LPSW1
24VAC
LPSW2
24VAC
24VAC
P385
J385
RT17
GND
RT48
GND
RT49
A30
GND
J382
P382
J383
P383
RT6
GND
RT46
GND
RT47
GND
FIELD
PROVIDED
WIRING
4
UVCLIGHT
POWER:
USE DUAL
CONNECTOR
PROVIDED
IN KIT.
SEE IAQ
DIAGRAM.
2
GND
K65
TOP
L3L2L1
BOTTOM
SEE POWER ENTRY
DIAGRAMIN DISCONNECT
BOXFOR DETAILS
P24
P18
P132
K10
GND
TO F10
LINE.L1
TO F10.LINE.L2
P86
53817801
WI RI NG
DI AGRAM
FLOW
SECTI ON
A
HEATI NG
SECTI ON
B
COOLI NGCOOLI NG
SECTI ON
B3
SECTI ON
C
ACCS
SECTI ON
D
ACCS
FROM TB13
LOAD LI.T
FROM TB13
LOAD L3.T
J391
P391
L34
GND
SHIELDED CABLE
TWISTEDPAIR
P
4
1
3
J
4
1
3
TO A3 ON
GASUNITS.
REFA−SECT
LOCCC01−02
A
B
G
5
5
DENOTES OPTIONAL COMPONENTSAND WIRING
J392
P392
TO B4 OFM
OPTIONAL IONIZER
WIRING.SEE IAQ
WIRING DIAGRAM
WB−033
WB−032
TO AM1/AM2
LOCBB07
1
TO A3
B6−2
ON GAS
UNIT ONLY
TO B5 OFM
TO K1 CONTACTOR
TO K2 CONTACTOR
P426
P426
P426
TO A3 P374−1
ON GASUNITONLY

Related product manuals