EasyManua.ls Logo

Lennox M33A036S4-1P - Page 25

Lennox M33A036S4-1P
28 pages
Print Icon
To Next Page IconTo Next Page
To Next Page IconTo Next Page
To Previous Page IconTo Previous Page
To Previous Page IconTo Previous Page
Loading...
25
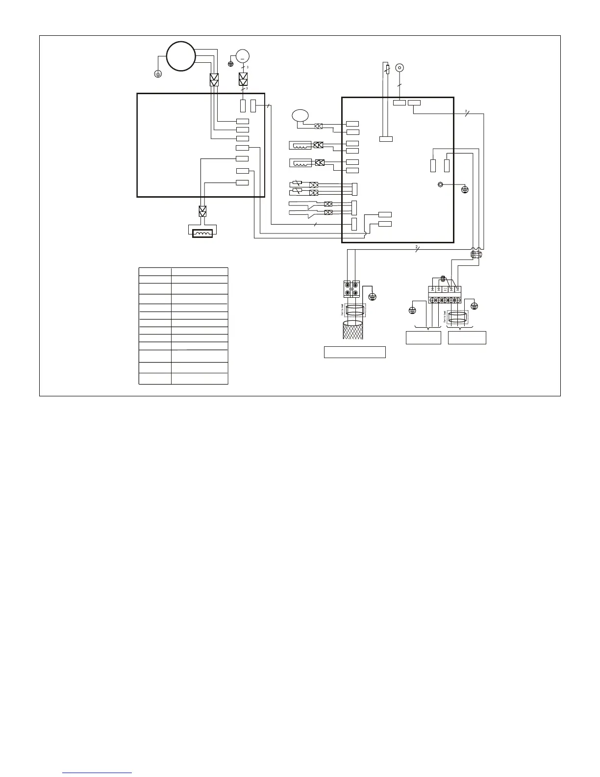
CO MP
MAIN B OA RD
R ED
BLACK
U
V
W
Y/G
Y/G
L
L-PRO
T3
T4
CODE PART NAME
COMPRESSOR
HE AT 1
4-W AY VALVE
COMP
EXV
ELECTRIC EXPANS IO N
VALV E
H-PRO
L-PRO
LOW PRESSURE SWIT CH
HIGH PRE SSURE SWIT CH
T3
T4
OUTDOOR COIL
TEMPERATURE SENSOR
OUTDOOR
TEMPERATURE SENSOR
CRANKCAS E HEAT ER
POWER SUPPLY
H-PRO
SV
L
PFC INDUCTOR
T5
T5
COMPRESSOR DISCHARGE
TEMP ERA TURE SENS OR
RED
BLA CK
V
U
CN19
CN51
CN55
W
EXV
BLACK
DRIVER BOARD
RED
7
7
YELLOW
BLUE
P-1
FM1
OUTDOOR DC FAN
CN53
CN20
CN34
CN3
CN4
CN10
CN40
CN22
CN44
C N 8
C N9
CN7
CN2
C N 1
CN5
CN54
CN52
CN33
5
CN6
SV
4-WAY
VALVE
BLUE
BLUE
HEAT2
HEAT1
BLACK
RED
BLUE
BLUE
BLUE
YELLOW
RED
BLACK
RED
BLACK
TO INDOOR COMM. BUS
XT 2
YE LLOW
GR AY
S1
S2
XT 1
L1
L2
L1
L2
2
)(
1
()
RED
B LAC K
MAIN
TO INDOOR UNIT
POWER SUPPLY
FM 1
Y/G
BLACK
BLACK
RED
RED
HE AT 2
PAN HEAT ER
NOTE: PLEASE USE 2-CORE
SHIELDED WIRE
Figure 40. 208/230V MPB036S4S-*P Outdoor Unit Wiring Diagram

Other manuals for Lennox M33A036S4-1P

Related product manuals