EasyManua.ls Logo

Lennox M33A036S4-1P - Unit Start-Up; Adding Refrigerant for Longer Line Set

Lennox M33A036S4-1P
28 pages
Print Icon
To Next Page IconTo Next Page
To Next Page IconTo Next Page
To Previous Page IconTo Previous Page
To Previous Page IconTo Previous Page
Loading...
27
MAIN BOARD
U
V
W
Y/G
L
L-PRO
T3
T4
CODE
PART NAME
COMPRESSOR
4-WAY VALVE
COMP
CAP1
EEV
ELECTRIC EXPANSION
VALVE
H-PRO
L-PRO
LOW PRESSURE SWITCH
HIGH PRESSURE SWITCH
T3
T4
CONDENSER
TEMPERATURE SENSOR
OUTDOOR AMBIENT
TEMPERATURE SENSOR
H-PRO
SV
L
PFC INDUCTOR
TS
DISCHARGE
TEMPERATURE SENSOR
RED
BLACK
V
U
CN19
CN51
CN55
W
EEV
BLACK
DRIVER BOARD
RED
YELLOW
BLUE
P-1
FM1
OUTDOOR DC FAN
FAN MOTOR CAPACITOR
CN53
CN20
CN3
CN4
CN10
CN40
CN22
CN44
CN8
CN9
CN7
CN2
CN1
CN5
CN54
CN52
CN33
5(6)
CN6
SV
4-WAY1
BLUE
BLUE
HEAT2
HEAT1
BLACK
RED
BLUE
BLUE
BLUE
YELLOW
RED
BLACK
RED
BLACK
L2
TO INDOOR UNIT
POWER SUPPLY
Y/G
2
L1
1
RED
RED
BLACK
YELLOW
S
BLACK
YELLOW
Crankcase Heater
Base Pan Heater
ONLY FOR
36K ODU
L1
L2
FM1
Y/G
3
3
Y/G
COMP
3
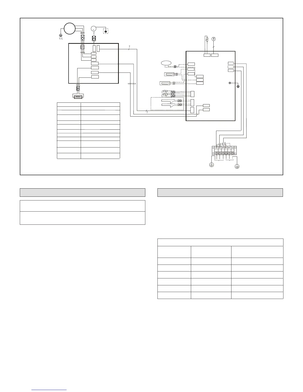
Figure 43. 208/230V MLA024S4S-*P Outdoor Unit Wiring Diagram
Unit Start-Up
IMPORTANT
Units should be energized 24 hours before unit start-up
to prevent compressor damage as a result of slugging.
1. Inspect all factory- and eld-installed wiring for loose
connections.
2. Verify that the manifold gauge set is connected.
3. Add additional refrigerant charge if required before
opening valves and while system is still under a
vacuum.
4. Open the liquid and gas line service valves to release
the refrigerant charge contained in outdoor unit into
the system.
5. Replace the stem caps and tighten to the value listed
in “Table 1. Torque Requirements” on page 10.
6. Check voltage supply at the outdoor unit terminal strip.
The voltage must be within the range listed on the
unit’s nameplate. If not, do not start the equipment
until you have consulted with the power company and
the voltage condition has been corrected.
7. Refer to the included user guide to operate the system
using the provided remote control.
8. Visually check for binding of both indoor and outdoor
fans.
Adding Refrigerant for Longer Line Set
The outdoor unit is factory-charged with refrigerant.
Calculate the additional refrigerant required according to
the diameter and the length of the liquid pipe between the
outdoor unit and indoor unit connections.
Be sure to add the proper amount of additional refrigerant.
Failure to do so may result in reduced performance.
Table 6. Additional Refrigerant Charge
System Size
(KBtu)
Pipe Length
(feet / meters)
Amount of Refrigerant
to add
09 >25 (7.5) 0.161 oz/ft (15g/m)
12 >25 (7.5) 0.161 oz/ft (15g/m)
18 >25 (7.5) 0.161 oz/ft (15g/m)
24 >25 (7.5) 0.322 oz/ft (30g/m)
36 >25 (7.5) 0.322 oz/ft (30g/m)
48 >25 (7.5) 0.322 oz/ft (30g/m)

Other manuals for Lennox M33A036S4-1P

Related product manuals