EasyManua.ls Logo

Lennox SSB060H4S4

Lennox SSB060H4S4
28 pages
To Next Page IconTo Next Page
To Next Page IconTo Next Page
To Previous Page IconTo Previous Page
To Previous Page IconTo Previous Page
Loading...
Page 20
507163-01 05/13
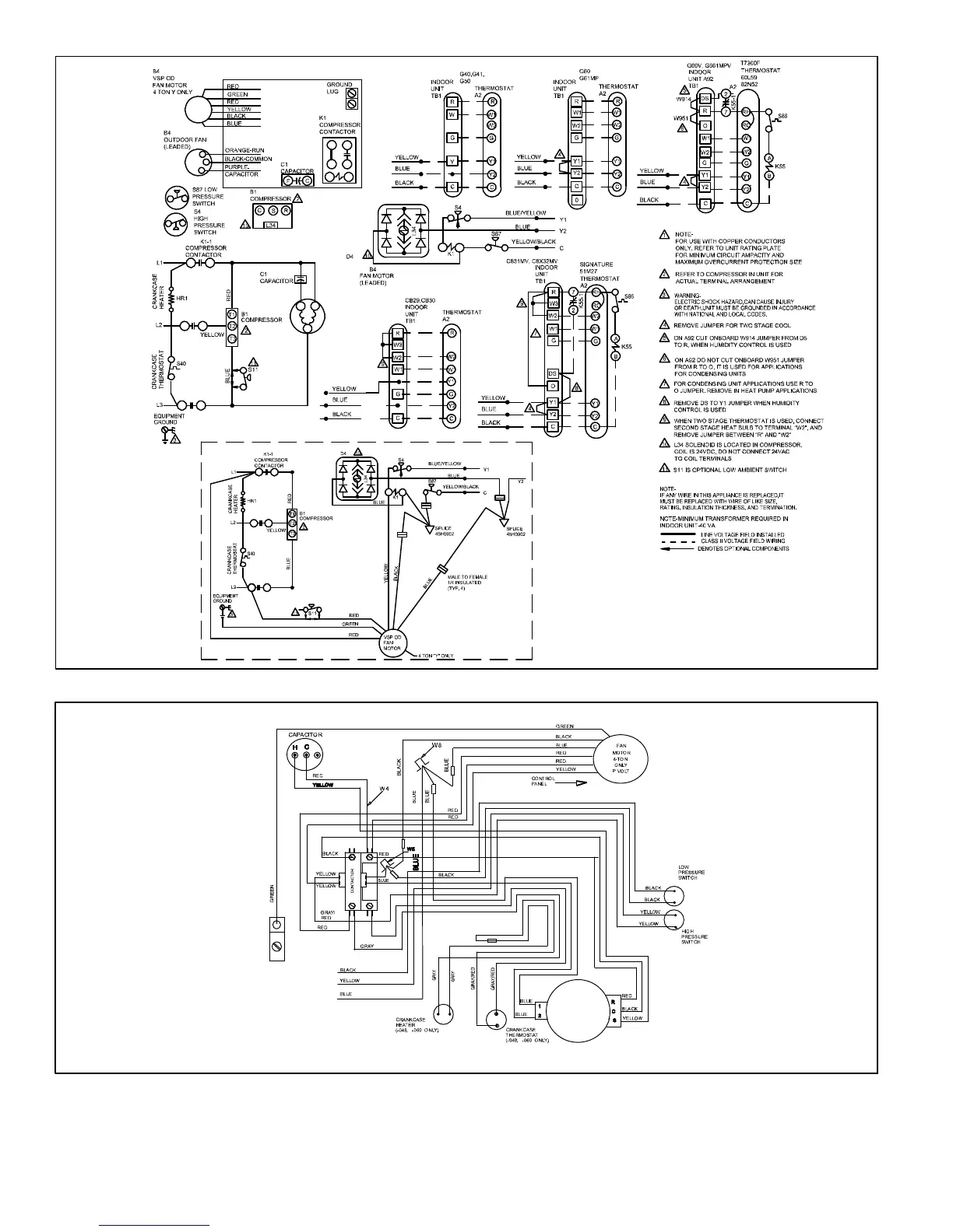
Figure 14. Typical Wiring Diagram (Y-Voltage)
Figure 15. SSB*H4 Typical Factory Diagram (Y-Voltage)

Related product manuals