EasyManua.ls Logo

Lennox XC20-036-230-01 - XC20 or XP20 iComfort Outdoor Unit Wiring Detail with Utility Load Shedding

Lennox XC20-036-230-01
78 pages
Print Icon
To Next Page IconTo Next Page
To Next Page IconTo Next Page
To Previous Page IconTo Previous Page
To Previous Page IconTo Previous Page
Loading...
47
XC20
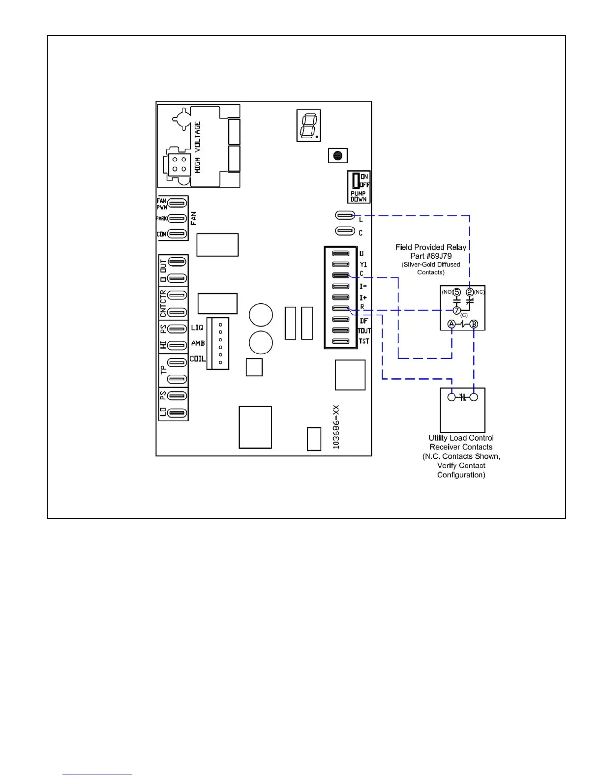
NOTE - For more information on Load-Shedding feature, see Electrical on page 24.
XC20 or XP20 iComfort Outdoor Unit
Wiring Detail with Utility Load Shedding
XC20 OUTDOOR CONTROL
Figure 24. Load-Shedding Feature Wiring Diagram

Table of Contents

Related product manuals