EasyManua.ls Logo

Lenovo THINKSERVER 3797 - Page 174

Lenovo THINKSERVER 3797
266 pages
Print Icon
To Next Page IconTo Next Page
To Next Page IconTo Next Page
To Previous Page IconTo Previous Page
To Previous Page IconTo Previous Page
Loading...
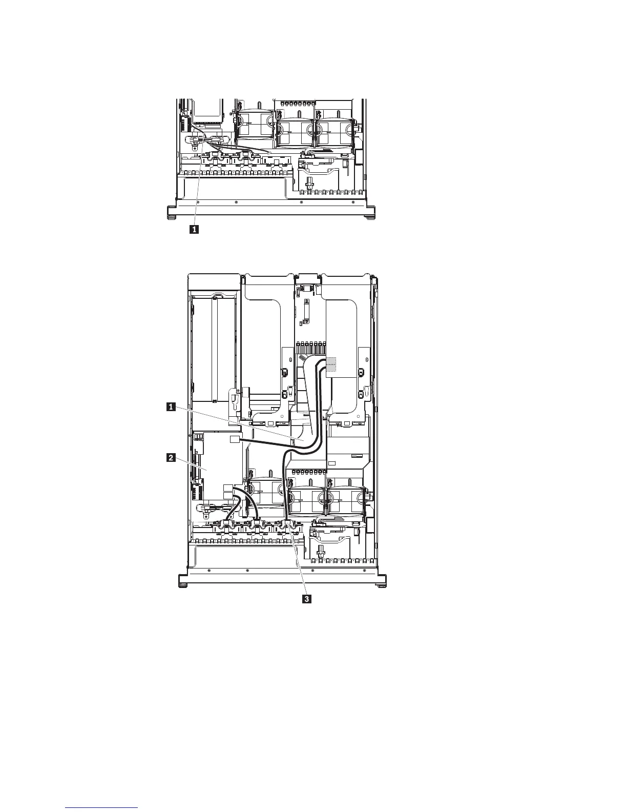
The following illustration shows the internal routing for the configuration cable (3
backplane connectors) 1.
The following illustrations show the internal routing for the SAS hard disk drive
backplane cables.
1 DIMM air baffle
2 SAS expander card
3 New backplane
166 ThinkServer RD220 Types 3729, 3779, 3797, and 3798: Hardware Maintenance Manual

Table of Contents

Related product manuals