EasyManua.ls Logo

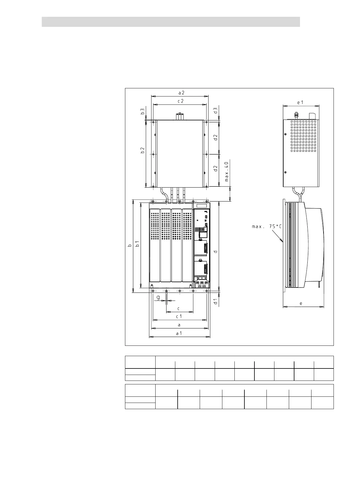
Lenze E82EV152K4C - Fig. 5.5-6 Dimensions for 8200 Vector in Cold Plate Technique 15

Lenze E82EV152K4C
588 pages
Print Icon
To Next Page IconTo Next Page
To Next Page IconTo Next Page
To Previous Page IconTo Previous Page
To Previous Page IconTo Previous Page
Loading...
Basic units in the power range 15 ... 30 kW
Mounting in ”cold plate” technique
5
Basic device installation
5.5
5.5.5
L
5.5-7
EDS82EV903-1.0-11/2002
8200vec299
Fig. 5.5-6 Dimensions for 8200 vector in cold plate technique 15 ... 22 kW
Dimensions [mm]
8200 vector a a1 b b1 c c1 d e g
E82CV153K4B
2
3
4
2
5
0
3
8
1
3
5
0
1
1
0
2
2
0
3
8
7
1
7
1
6
5
E82CV223K4B
234 250 381 350 110 220 387 171 6.5
Dimensions [mm]
8200 vector a2 b2 b3 c2 d1 d2 d3 e1
E82CV153K4B
2
3
4
2
7
5
2
2
1
8
7
1
3
1
8
7
5
1
4
8
E82CV223K4B
234 275 2 218 7 131.8 7.5 148
With mains filter
Show/Hide Bookmarks

Table of Contents

Related product manuals