EasyManua.ls Logo

Lenze E82EV222K4C - Page 159

Lenze E82EV222K4C
588 pages
Print Icon
To Next Page IconTo Next Page
To Next Page IconTo Next Page
To Previous Page IconTo Previous Page
To Previous Page IconTo Previous Page
Loading...
Basic units in the power range 15 ... 30 kW
Power connections
6
Basic unit wiring
6.6
6.6.2
L
6.6-5
EDS82EV903-1.0-11/2002
l
E.l.c.bs must only be installed between mains supply and controller.
l E.l.c.bs can trip incorrectly because of
capacitive leakage currents of the cable shields during operation
(especially with long, shielded motor cables),
simultaneous connection of several controllers to the mains supply,
use of additional RFI filters.
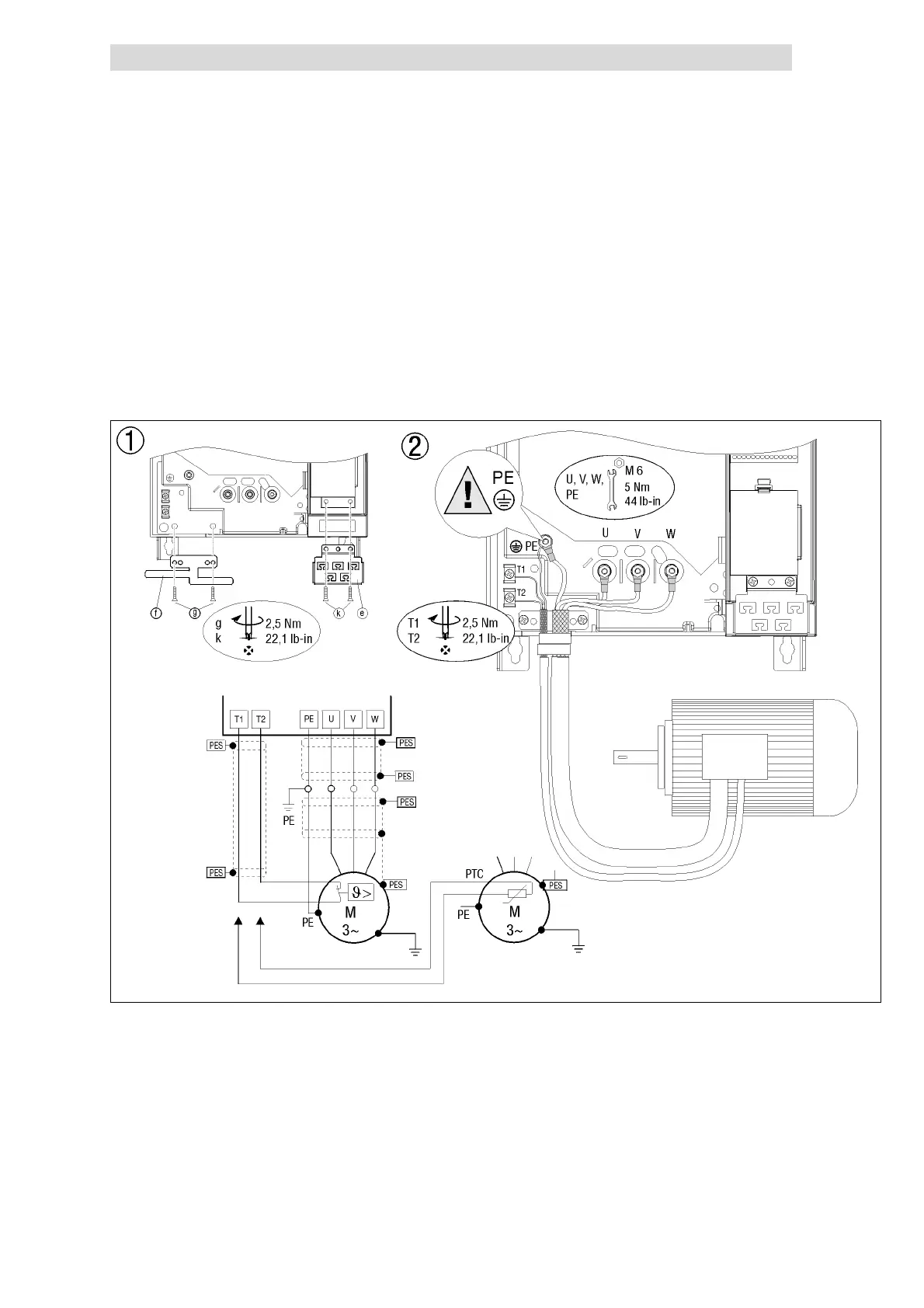
Motor connection
8200vec285
Fig. 6.6-3 Motor connection 15 ... 30 kW
Use low-capacity motor cables! (Core/core 140 pF/m,
core/shield 230 pF/m)
Use short motor cables if possible!
PES HF-shield end by PE connection via shield clamp.
T1, T2 Connection terminals of motor temperature monitoring with PTC
thermistor or thermal contact (NC contact).
Route a separate cable (shielded) to X2/T1 and X2/T2 for the motor
temperature monitoring.
Activate the motor temperature monitoring under C0119 (e. g. C 0119 = 1)!
Route the control and mains cables separately from the motor cable!
Please observe the following
when using e.l.c.bs:
Show/Hide Bookmarks

Table of Contents

Related product manuals