EasyManua.ls Logo

Lenze E82EV222K4C - Fig. 16.3-7 Overview of Signal Flow with Fieldbus Function Module (FIF); Controller with Fieldbus Function Module and Communication Module

Lenze E82EV222K4C
588 pages
Print Icon
To Next Page IconTo Next Page
To Next Page IconTo Next Page
To Previous Page IconTo Previous Page
To Previous Page IconTo Previous Page
Loading...
Overview of signal processing
Controller with fieldbus function module and communication module
16
Signal-flow charts
16.3
16.3.7
L
16.3-7
EDS82EV903-1.0-11/2002
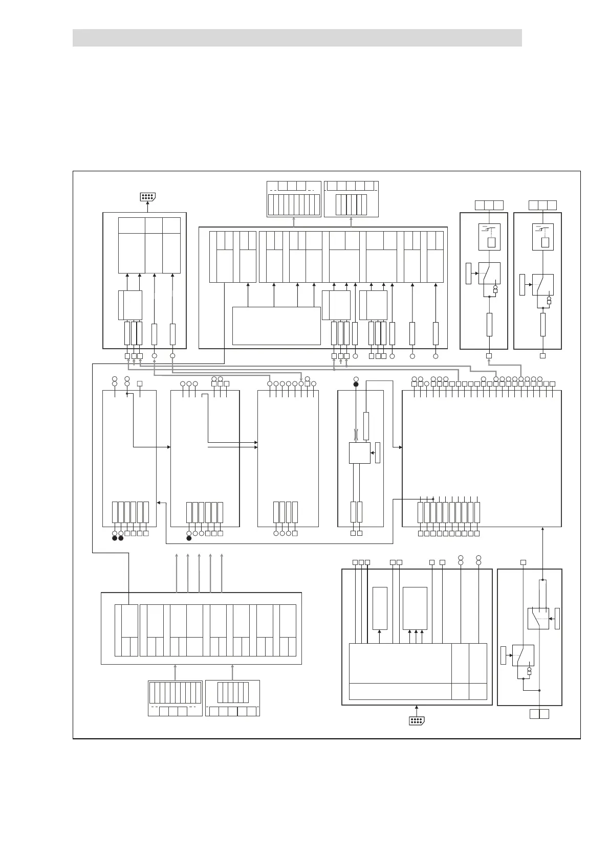
16.3.7 Controller with fieldbus function module and communication module
RELAY 2
8200 vector 15 ... 90kW
K21
1
1
0
C0409
K22
K24
X1.3
C0416
RELAY 1
C0416
K14
1
1
0
C0415/1
K11
K12
X1.2
FIF-OUT
NSET1
PCTRL1
MCTRL1
DCTRL1
Byte 5
16 Bit
Byte 24
Byte 33
STAT.B15
STAT.B0
Byte 36
DRIVECOM-STAT
Byte 33
CTRL.B15
CTRL.B0
Byte 34
DRIVECOM-CTRL
Byte 1
FIF-STAT.B15
FIF-STAT.B0
Byte 2
FIF-STAT1
Byte 3
FIF-STAT.B31
FIF-STAT.B16
Byte 4
FIF-STAT2
Byte 25
Byte 26
FIF-OUT.W1
16 Bit
Byte 27
Byte 28
FIF-OUT.W2
16 Bit
Byte 29
Byte 30
FIF-OUT.W3
16 Bit
Byte 31
Byte 32
FIF-OUT.W4
16 Bit
A
B
I
K
PEW3
PEW4
PEW1
PEW2
PEW7
PEW8
PEW5
PEW6
PEW9
PEW10
A
CN
B
PROFIBUS
PEW3
PEW4
PEW1
PEW2
PEW5
PEW6
INTERBUS
STAT1.B15
STAT1.B0
STAT1
C0417/16
C0417/1
C0421/3
C0421/4
C0421/5
C0421/6
STAT2.B15
STAT2.B0
STAT2
C0418/16
C0418/1
AIF-OUT
AIFSTAT.B0
AIFSTAT.B15
C0421/1
AIF-OUT.W1
C0421/2
AIF-OUT.W2
2
2
16 Bit
16 Bit
AIF-STAT
Byte 3,4
Byte 5,6
AIF
...
STAT1.B15
STAT1.B0
STAT1
C0417/16
C0417/1
DCTRL1-TRIP-SET
DCTRL1-TRIP-RESET
DCTRL1-PAR 2/4
DCTRL1-PAR 3/4
DCTRL1-CW/QSP
DCTRL1
DCTRL1-PAR-B0
DCTRL1-PAR-B1
DCTRL1-CINH
DCTRL1-OH-WARN
DCTRL1-OV
DCTRL1-RDY
DCTRL1-TRIP-QMIN-IMP
DCTRL1-PTC-WARN
DCTRL1-LP1-WARN
DCTRL1-TRIP
DCTRL1-IMP
DCTRL1-IMOT<ILIM
DCTRL1-(IMOT<ILIM)-QMIN
DCTRL1-(IMOT<ILIM)-RFG-I=O
DCTRL1-(IMOT>ILIM)-RFG-I=O
DCTRL1-RFG1=NOUT
DCTRL1-NOUT=0
DCTRL1-RUN
DCTRL1-RUN-CW
DCTRL1-RUN-CCW
DCTRL1-CCW
DCTRL1-CW/CCW
DCTRL1-QSP
DCTRL1-H/Re
2
2
2
2
2
2
2
2
2
2
2
2
2
2
DCTRL1-CCW/QSP
C0410/22
C0410/11
C0410/12
C0410/13
C0410/14
C0410/3
C0410/4
C0410/17
C0410/23
2
DCTRL1-C0010...C0011
DCTRL1-OH-PCT-LP1-FAN-WARN
DCTRL1-CINHC0410/10
MPOT1
MPOT1-OUT
C0265
2
C0410/7
MPOT1-UP
C0410/8
MPOT1-DOWN
MPOT1-QSP
C0011
C0010
C0265=3,4,5
MPOT
INIT
MCTRL1-VOLT-ADD
MCTRL1-DCB
MCTRL1-PHI-ADD
MCTRL1-NOUT+SLIP
MCTRL1-NOUT
MCTRL1-Imax
MCTRL1-VOLT
MCTRL1-IMOT
MCTRL1-DCVOLT
MCTRL1-MOUT
MCTRL1-(1/C0050)
C0412/6
C0410/15
C0412/8
C0412/9
MCTRL1-MSET
MCTRL1
2
2
2
2
2
2
2
2
PCTRL1
2
2
2
2
2
PCTRL1-I-OFF
PCTRL1-ACT
PCTRL1-SET1
PCTRL1-OFF
PCTRL1-STOP
PCTRL1-OUT
PCTRL1-SET=ACT
PCTRL1-SET
PCTRL1-ACT
PCTRL1-QMIN
PCTRL1-NMIN
PCTRL1-NADD
C0412/3
C0410/21
C0412/4
C0412/5
C0410/18
C0410/19
PCTRL1-NOUT
PCTRL1-SET3
NSET1
NSET1-RFG1-STOP
NSET1-RFG1-0
NSET1-N1
NSET1-JOG1/3
NSET1-JOG2/3
NSET1-RFG1-I=0
NSET1-RFG1-IN
NSET1-N2
NSET1-NOUT
C0412/1
C0412/2
C0410/1
C0410/2
C0410/5
C0410/6
2
2
AIF-IN
AIFCTRL.B0
AIFCTRL.B1
AIFCTRL.B2
AIFCTRL.B3
AIFCTRL.B4
AIFCTRL.B8
CINH
TRIP-SET
TRIP-RESET
AIFCTRL.B12
AIFCTRL.B15
DCTRL
16 Bit
16 Bit
AIF-CTRL
Byte 3,4
Byte 5,6
AIFCTRL.B9
AIFCTRL.B10
AIFCTRL.B11
QSP
DCTRL
AIF-IN1.W2
2
AIF-IN1.W1
2
AIF
FIF-IN
Byte 33
CTRL.B15
CTRL.B0
Byte 34
Byte 1
FIF-CTRL.B15
FIF-CTRL.B0
Byte 2
FIF-CTRL1
Byte 5
16 Bit
Byte 14
Byte 3
FIF-CTRL.B31
FIF-CTRL.B16
Byte 4
FIF-CTRL2
Byte 29
Byte 30
FIF-IN.W3
16 Bit
Byte 25
Byte 26
FIF-IN.W1
16 Bit
Byte 27
Byte 28
FIF-IN.W2
16 Bit
Byte 31
Byte 32
FIF-IN.W4
16 Bit
A
B
I
K
DRIVECOM-CTRL1
NSET1
PCTRL1
MCTRL1
DCTRL1
MPOT1
PAW3
PAW4
PAW1
PAW2
PAW7
PAW8
PAW5
PAW6
PAW9
PAW10
A
CN
B
PROFIBUS
PAW3
PAW4
PAW1
PAW2
PAW5
PAW6
INTERBUS
DIGIN2
C0119
X2.2
1,4
0,3
T1
T2
2,5
WARN
TRIP
1
1
0
C0411
8200vec506
Fig. 16.3-7 Overview of signal flow with fieldbus function module (FIF) and communication
module (AIF)

Table of Contents

Related product manuals