EasyManua.ls Logo

Lenze E82EV222K4C - Basic Units in the Power Range 3; Fig. 5.3-2 Dimensions for Thermally Separated Mounting 0.25; Thermally Separated Mounting (Push-Through Technique)

Lenze E82EV222K4C
588 pages
Print Icon
To Next Page IconTo Next Page
To Next Page IconTo Next Page
To Previous Page IconTo Previous Page
To Previous Page IconTo Previous Page
Loading...
Basic units in the power range 0.25 ... 2.2 kW
Thermally separated mounting (push-through technique)
5
Basic device installation
5.3
5.3.2
L
5.3-2
EDS82EV903-1.0-11/2002
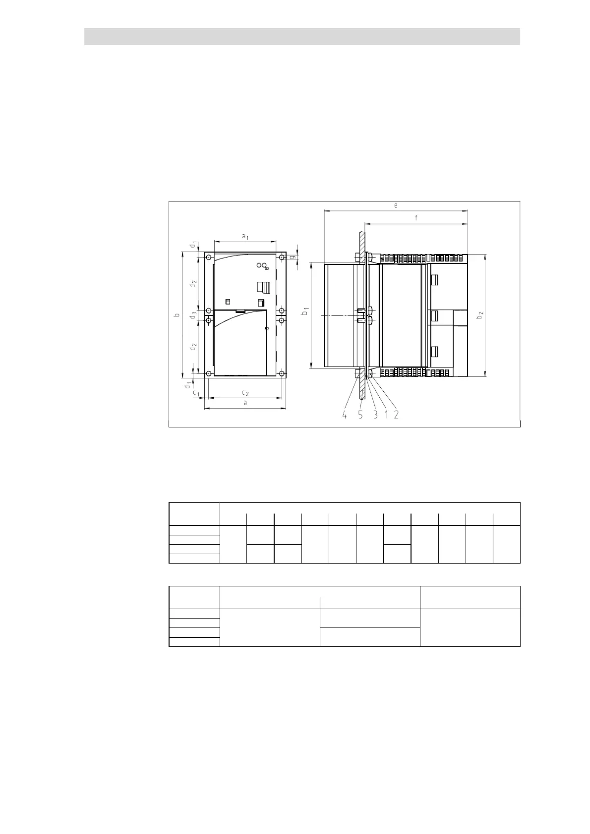
5.3.2 Thermally separated mounting (push-through technique)
For mounting in push-through technique use the controller type E82 D V... . The
delivery package includes all parts and components required for mounting.
8200vec027
Fig. 5.3-2 Dimensions for thermally separated mounting 0.25 ... 0.75 kW
1 Fixing frames
2ScrewM4x10
3 Gasket
4 Hex nut M4
5 Control cabinet rear panel
Dimensions [mm]
8200 vector a b b
2
c
1
c
2
d
1
d
2
d
3
e f g
E82DV251K2C
1
2
4
1
2
0
5
2
E82DV371K2C
7
9
4
1
2
4
1
2
0
4
2
7
1
5
5
2
1
0
1
4
0
1
0
0
4
5
E82DV551KxC
7
9
.
4
1
8
4
1
8
0
4
.
2
7
1
5
8
2
1
0
1
4
0
1
0
0
4
.5
E82DV751KxC
1
8
4
1
8
0
8
2
Cutout in control cabinet
Dimensions [mm]
8200 vector a
1
b
1
Fixing frames
E82DV251K2C
1
0
1
E82DV371K2C
6
1
1
0
1
E
8
2
Z
J
0
0
3
E82DV551KxC
6
1
1
6
1
E
8
2
Z
J
0
0
3
E82DV751KxC
1
6
1
8200 vector 0.25 ... 0.75 kW
Show/Hide Bookmarks

Table of Contents

Related product manuals