EasyManua.ls Logo

Lenze E82EV222K4C - Page 517

Lenze E82EV222K4C
588 pages
Print Icon
To Next Page IconTo Next Page
To Next Page IconTo Next Page
To Previous Page IconTo Previous Page
To Previous Page IconTo Previous Page
Loading...
Braking operation with external brake resistor
8200 vector 15 ... 90 kW
13
Braking operation
13.4
13.4.2
L
13.4-7
EDS82EV903-1.0-11/2002
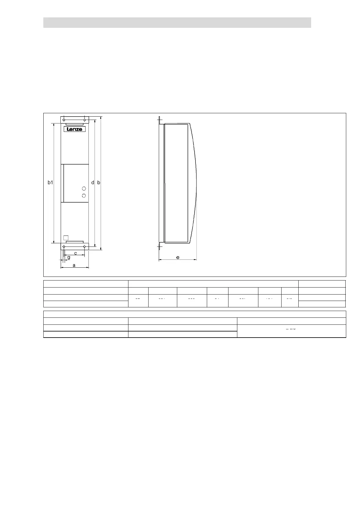
Mounting/dimensions for cold plate technique
Variant V003 is required for mounting the brake chopper or brake module cold
plate technology.
9350E003
Dimensions [mm]
Type a b b1 c d e g Weight [kg]
EMB9351 -C-V003 52 381 350 34 367 104 6.5 2.6
EMB9352 -C-V003
5
2
3
8
1
3
5
0
3
4
3
6
7
1
0
4
6
5
2.2
Thermal resistance R
th
(transition cooler / cooling medium)
Type Power to be dissipated P
V
[W] CoolingpathR
th
[°C/W]
EMB9351 -C-V003 100 0.3
EMB9352 -C-V003 63
0
3
Show/Hide Bookmarks

Table of Contents

Related product manuals