EasyManua.ls Logo

Lenze MOBILE Series - Mechanical Installation

Lenze MOBILE Series
76 pages
To Next Page IconTo Next Page
To Next Page IconTo Next Page
To Previous Page IconTo Previous Page
To Previous Page IconTo Previous Page
Loading...
Installation
Mechanical installation
5
Ò
41
EDSMDAG EN 2.0
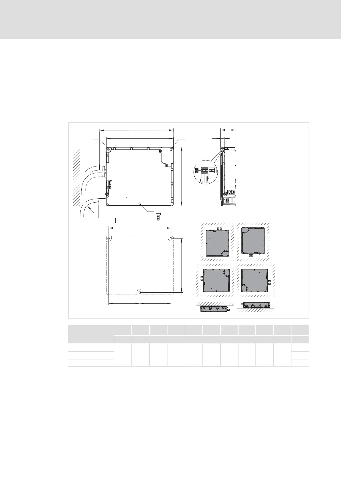
5.2 Mechanical installation
EMDAG2..., EMDAG3..., EMDAG4...
The mounting material must ensure a durable mechanical connection. The fixing points
are dimensioned for:
ƒ M10 cheese head screw, hexagon socket, according to DIN 912/ISO 4762
ƒ M10 cheese head screw, torx, according to ISO 14579
g
3
g
3
g
3
b
g
b
1
h
c
3
d
3
c
4
t
c
5
M10
r
X11 / X12 / X13
EMDAG002
h b t b
1
c
3
c
4
c
5
d
3
g
3
r Ý
[mm] [kg]
EMDxG2...
310
394 81 355 331 165.5 165.5 286 Ø 11 106
7.0
EMDxG3... 8.4
EMDxG4... 8.4

Table of Contents

Other manuals for Lenze MOBILE Series

Related product manuals