EasyManua.ls Logo

LG ARUM072DTE5 - Page 75

LG ARUM072DTE5
184 pages
Print Icon
To Next Page IconTo Next Page
To Next Page IconTo Next Page
To Previous Page IconTo Previous Page
To Previous Page IconTo Previous Page
Loading...
75
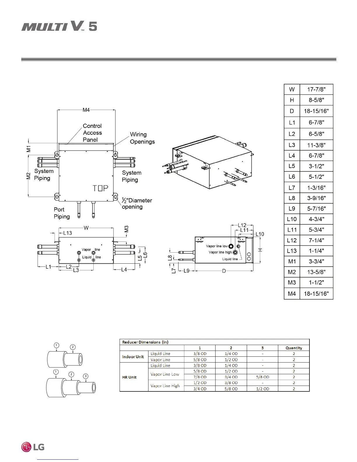
Refrigerant Piping System Installation for Heat Recovery Operation
Due to our policy of continuous product innovation, some specications may change without notication.
©LG Electronics U.S.A., Inc., Englewood Cliffs, NJ. All rights reserved. “LG” is a registered trademark of LG Corp.
PRHR022A
INSTALLING FOR HEAT RECOVERY
OPERATION
Heat Recovery Units

Table of Contents

Related product manuals