EasyManua.ls Logo

LG D337 - Page 180

LG D337
242 pages
Print Icon
To Next Page IconTo Next Page
To Next Page IconTo Next Page
To Previous Page IconTo Previous Page
To Previous Page IconTo Previous Page
Loading...
- 180 -
Copyright © 2014 LG Electronics. Inc. All right reserved.
Only for training and service purposes
LGE Internal Use Only
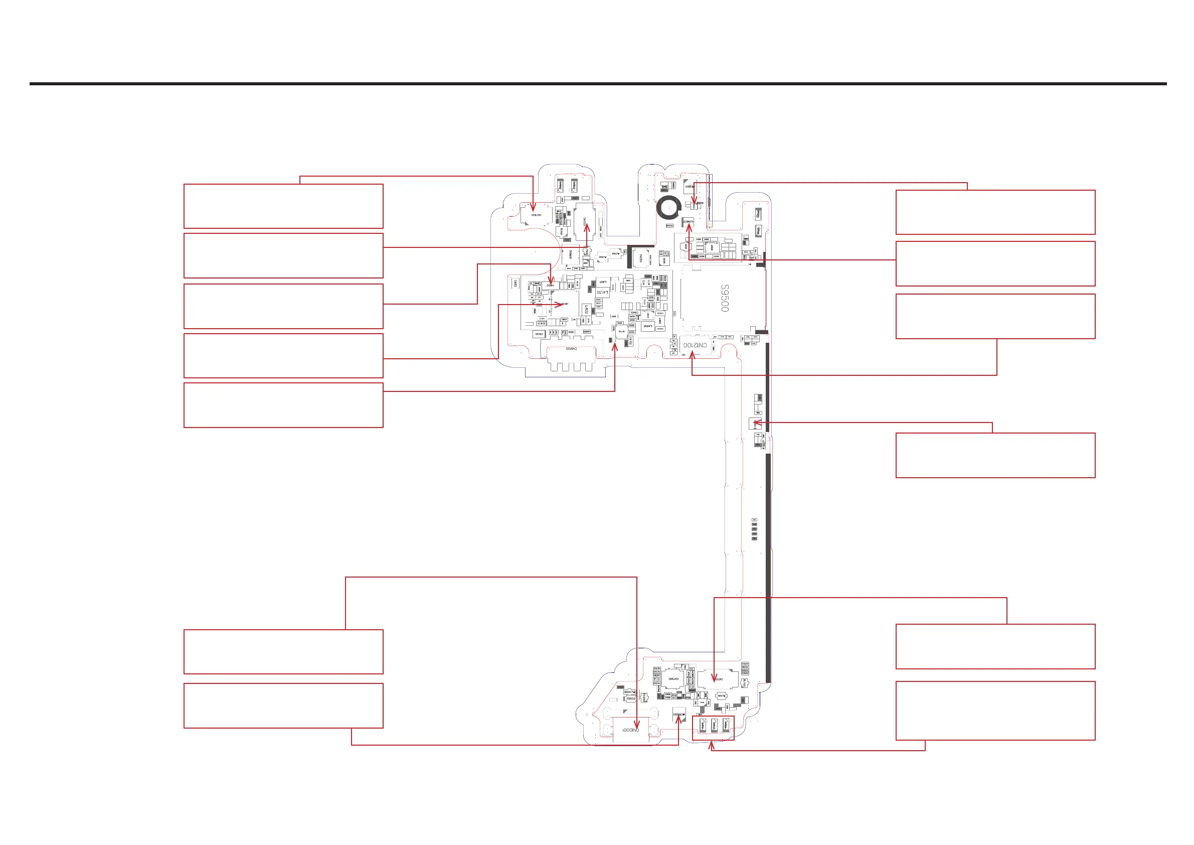
8. PCB LAYOUT
LG-D337_Main_EAX65632401_1.0_BOT-1
D:\expedition\L80V\EAX66073001_1_0_LGD337_MAIN_140618_1715\PCB\Board1.pcb - Page 1 of 1 pages.









































































 












 




 













 

Model name : GB042-20S-H10-E3000 (CN7400)
Function : VT camera connector
- no VT camera
Model name : GB042-30S-H10-E3000 (CN7001)
Function : PMIC
-no booting, no touch, no LCD, no RF
Model name : FC-135(X4100)
Function : X-tal
- No booting
Model name : MT6323(U4100)
Function : PMIC
-no booting, no touch, no LCD, no RF
Model name : RT9536GQW (U4700)
Function : Linear Charger IC
- no charge
Model name : 04-5151-005-104-883(CN10001)
Function : USB connection
- no charge, no USB connection
Model name : SPW4430HR5H(MIC69020)
Function : Microphone
- no MIC.(Voice)
Model name : AK09911 (U8200)
Function : 3-axis geomagnetic sensor
- no compass sensor
Model name : LXCL-PWF4 (LD9830)
Function : Fresh LED
- no fresh LED
Model name : HSTC-06P20-1351 (CN12100)
Function : Back key FPCB connector
- no back key
Model name : MS-156C (SW1101)
Function : RF switch
- no RF
Model name : GB042-30S-H10-E3000 (CN7000)
Function : LCD B to B connector
- no LCD
Model name : C-Clip
(ANT1108,ANT1109,ANT1102)
Function : Main antenna connection
- no Service

Related product manuals