EasyManua.ls Logo

LG DVS7905 - Circuit Diagrams; Power(Smps) CIRCUIT DIAGRAM

LG DVS7905
145 pages
Print Icon
To Next Page IconTo Next Page
To Next Page IconTo Next Page
To Previous Page IconTo Previous Page
To Previous Page IconTo Previous Page
Loading...
3-30 3-31
CIRCUIT DIAGRAMS
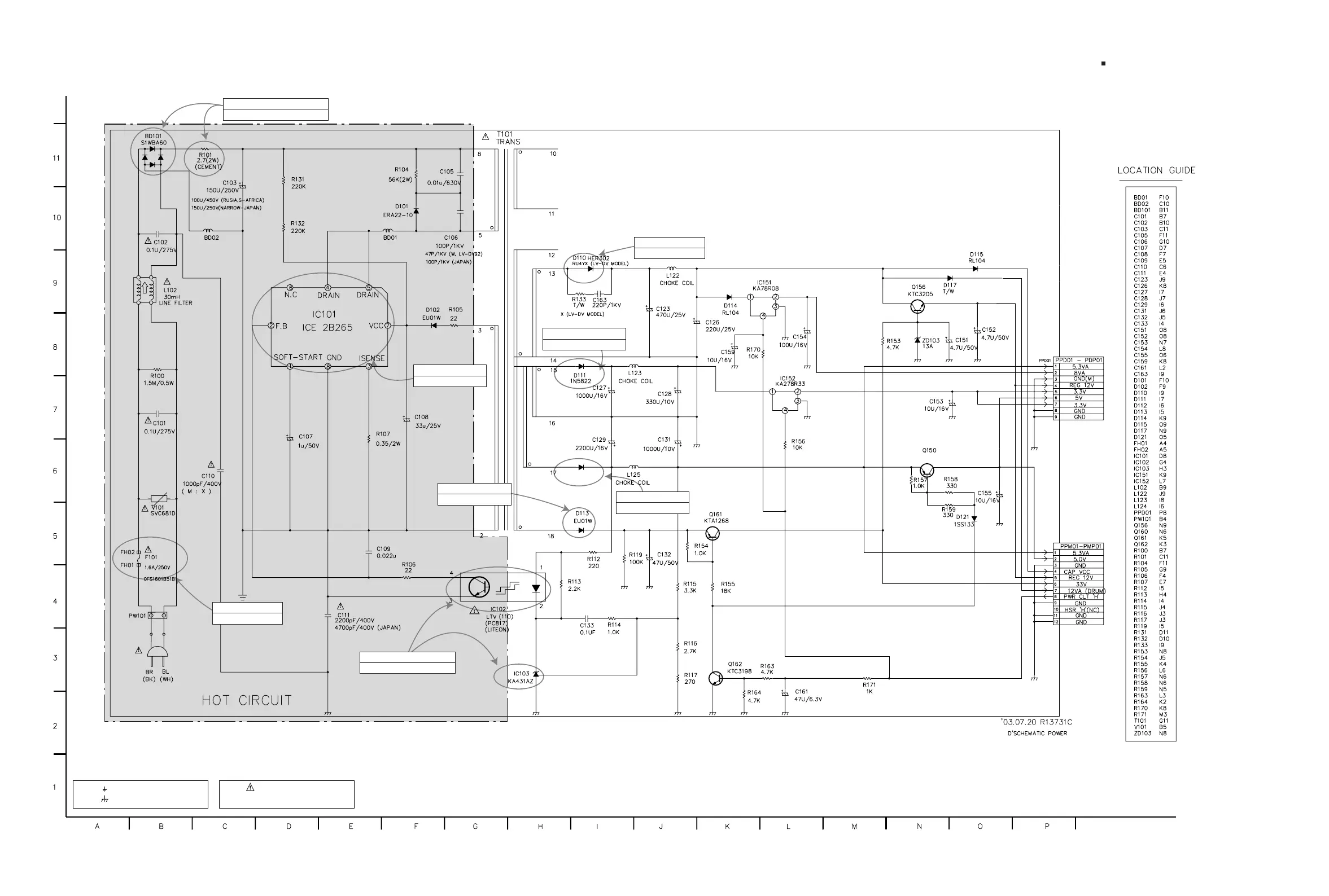
1. POWER(SMPS) CIRCUIT DIAGRAM
Switching Error.
IC101 is defective.
Switching Error.
IC105, 102 are defective.
2.5V, 3.3V no power.
D111 is defective.
No Power.
F101 is defective.
5.3VA no power.
D112 is defective.
33V no power.
D113 is defective.
No power.
BD101, R101 are defective.
12VA no power.
D110 is defective.
IMPORTANT SAFETY NOTICE
WHEN SERVICING THIS CHASSIS, UNDER NO CIR-
CUMSTANCES SHOULD THE ORIGINAL DESIGN BE
MODIFIED OR ALTERED WITHOUT PERMISSION
FROM THE LG ELECTRONICS CORPORATION. ALL
COMPONENTS SHOULD BE REPLACED ONLY WITH
TYPES IDENTICAL TO THOSE IN THE ORIGINAL CIR-
CUIT. SPECIAL COMPONENTS ARE SHADED ON THE
SCHEMATIC FOR EASY IDENTIFICATION.
THIS CIRCUIT DIAGRAM MAY OCCASIONALLY DIF-
FER FROM THE ACTUAL CIRCUIT USED. THIS WAY,
IMPLEMENTATION OF THE LATEST SAFETY AND
PERFORMANCE IMPROVEMENT CHANGES INTO
THE SET IS NOT DELAYED UNTIL THE NEW SERVICE
LITERATURE IS PRINTED.
NOTE :
1. Shaded( ) parts are critical for safety. Replace only
with specified part number.
2. Voltages are DC-measured with a digital voltmeter
during Play mode.

Table of Contents

Related product manuals