EasyManua.ls Logo

LG MULTI V ARNU543NKA4 - Dimensions - Vertical Air Handling Unit NJ Chassis

LG MULTI V ARNU543NKA4
94 pages
To Next Page IconTo Next Page
To Next Page IconTo Next Page
To Previous Page IconTo Previous Page
To Previous Page IconTo Previous Page
Loading...
32
Multi V Ducted Indoor Units
Due to our policy of continuous product innovation, some specifications may change without notification.
©LG Electronics U.S.A., Inc., Englewood Cliffs, NJ. All rights reserved. “LG” is a registered trademark of LG Corp.
GENERAL DATA
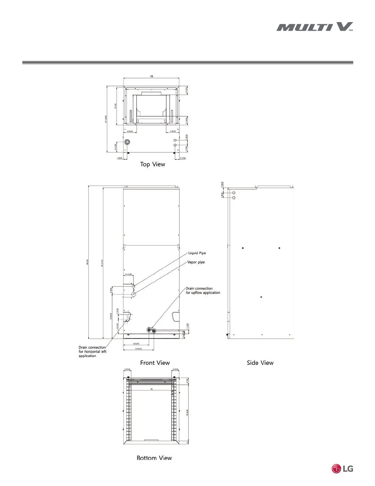
Dimensions – Vertical Air Handling Unit NJ Chassis

Table of Contents

Related product manuals