EasyManua.ls Logo

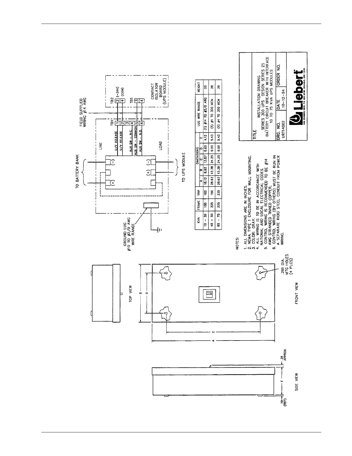
Liebert 311 - Figure 29 Optional Battery Circuit Breaker 10-75 kVA

Liebert 311
113 pages
Print Icon
To Next Page IconTo Next Page
To Next Page IconTo Next Page
To Previous Page IconTo Previous Page
To Previous Page IconTo Previous Page
Loading...
System Options 97
Figure 29 Optional Battery Circuit Breaker 10-75 kVA

Table of Contents

Related product manuals