EasyManua.ls Logo

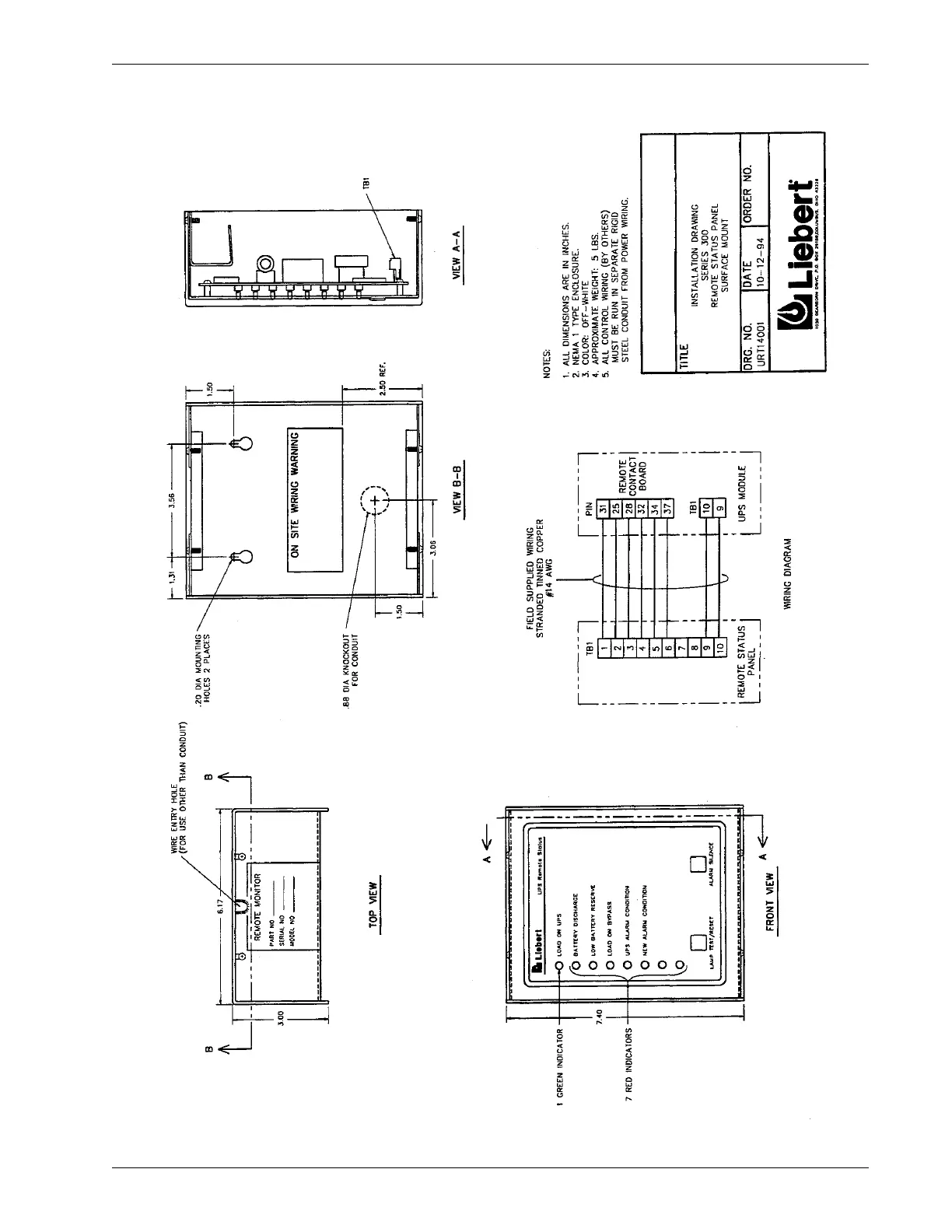
Liebert 311 - Figure 25 Optional Remote Status Panel

Liebert 311
113 pages
Print Icon
To Next Page IconTo Next Page
To Next Page IconTo Next Page
To Previous Page IconTo Previous Page
To Previous Page IconTo Previous Page
Loading...
System Options 93
Figure 25 Optional Remote Status Panel

Table of Contents

Related product manuals