EasyManua.ls Logo

Liebert PX018 - Page 148

Liebert PX018
153 pages
Print Icon
To Next Page IconTo Next Page
To Next Page IconTo Next Page
To Previous Page IconTo Previous Page
To Previous Page IconTo Previous Page
Loading...
REV : 2
REV DATE : 12/16
DPN003610
Page :1 /1
Form No.: DPN001040_REV4
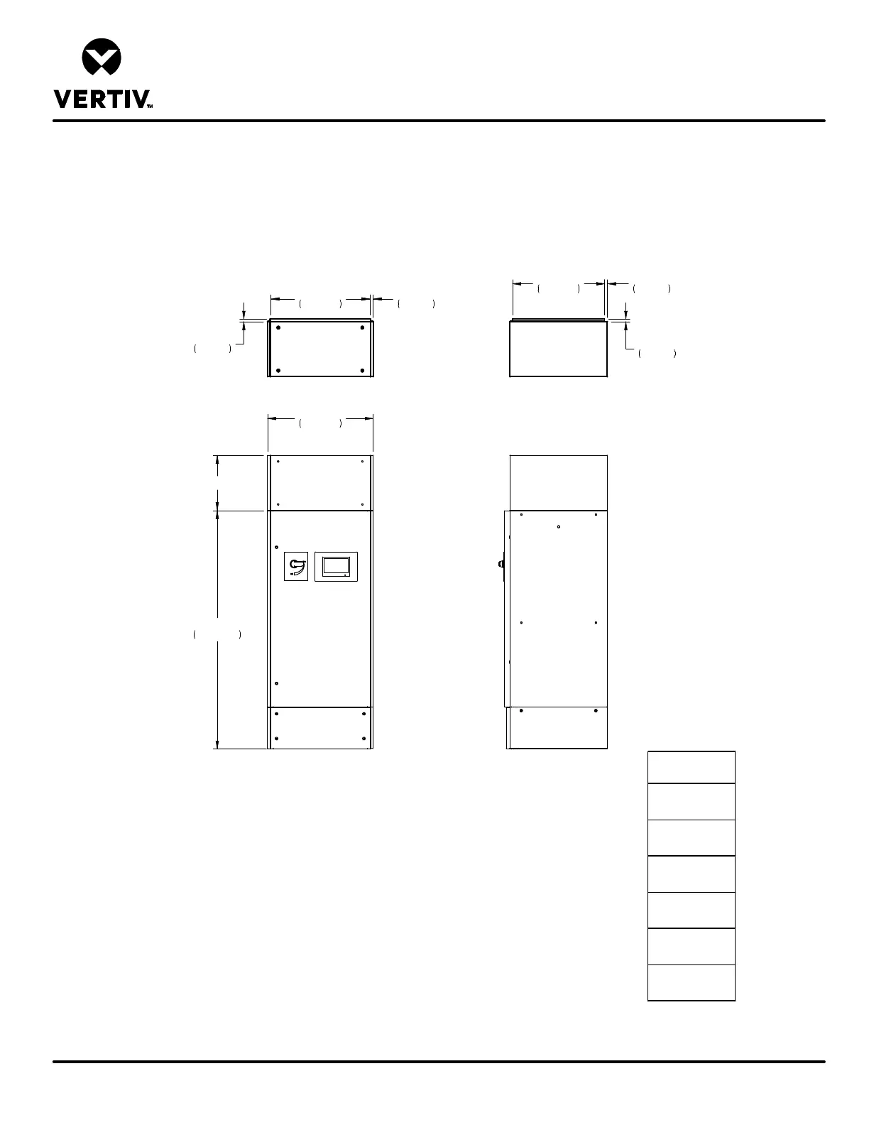
DOWNFLOW PLENUM DIMENSIONAL DATA
LIEBERT PDX & PCW
Notes:
1. All Plenums are shipped flat (non-assembled) and must be assembled on site.
FRONT VIEW
SIDE VIEW DIMENSIONS
7/8"
22mm
30"
763mm
13/16"
20mm
1 1/16"
27mm
32 3/8"
822mm
13/16"
20mm
Height H
in (mm)
42" (1066)
48" (1219)
36" (914)
18" (457)
24" (609)
30" (762)
FRONT OF UNIT
34 1/2"
876mm
RIGHT SIDE
77 5/8"
1972mm
H

Table of Contents

Related product manuals