EasyManua.ls Logo

LPGTECH KRS TECH-DUO - Page 23

Default Icon
Print Icon
To Next Page IconTo Next Page
To Next Page IconTo Next Page
To Previous Page IconTo Previous Page
To Previous Page IconTo Previous Page
Loading...
23
Maximum temperature in the boiler cannot exceed 90°C.
Minimum temperature of returning water cannot be lower than 55°C.
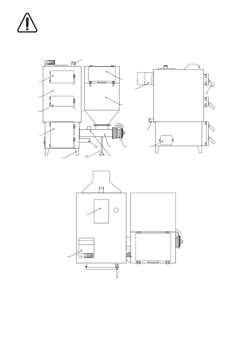
DIAGRAM OF KRS DUO-TECH BOILER – EXTERNAL CONSTRUCTION










CPJMFSFYDIBOHFS
BTIQBOBOEGVSOBDFEPPS
DBTUJSPOHSBUFEPPSPQUJPOBM
VQQFSXBTIPVUIPMFEPPSPQUJPOBM
GVFMCVOLFS
GVFMCVOLFSMJEXJUIUXPIBOEMFT
IPUXBUFSEJTDIBSHFS
SFUVSOJOHDPMEXBUFSTVQQMZQJQF
VQQFSXBTIPVUIPMFMJEPQUJPOBM
CPUUPNXBTIPVUIPMF
EPPSIBOEMFT
DPOUSPMMFS
nVFoUSBOTQPSUJOHFYIBVTUGVNFT
UPUIFDIJNOFZ
GBO
GFFEJOHTDSFXUVCF
NPUPSFEVDUPS
CPJMFSTMFHT
SFHVMBUFEMFHPGUIFGVFMCVOLFS
BVUPNBUJDTBGFUZWBMWF