EasyManua.ls Logo

LSIS XEC-DN32H/DC - Page 206

LSIS XEC-DN32H/DC
315 pages
Print Icon
To Next Page IconTo Next Page
To Next Page IconTo Next Page
To Previous Page IconTo Previous Page
To Previous Page IconTo Previous Page
Loading...
Chapter 7 Program Examples of Positioning
7 - 2
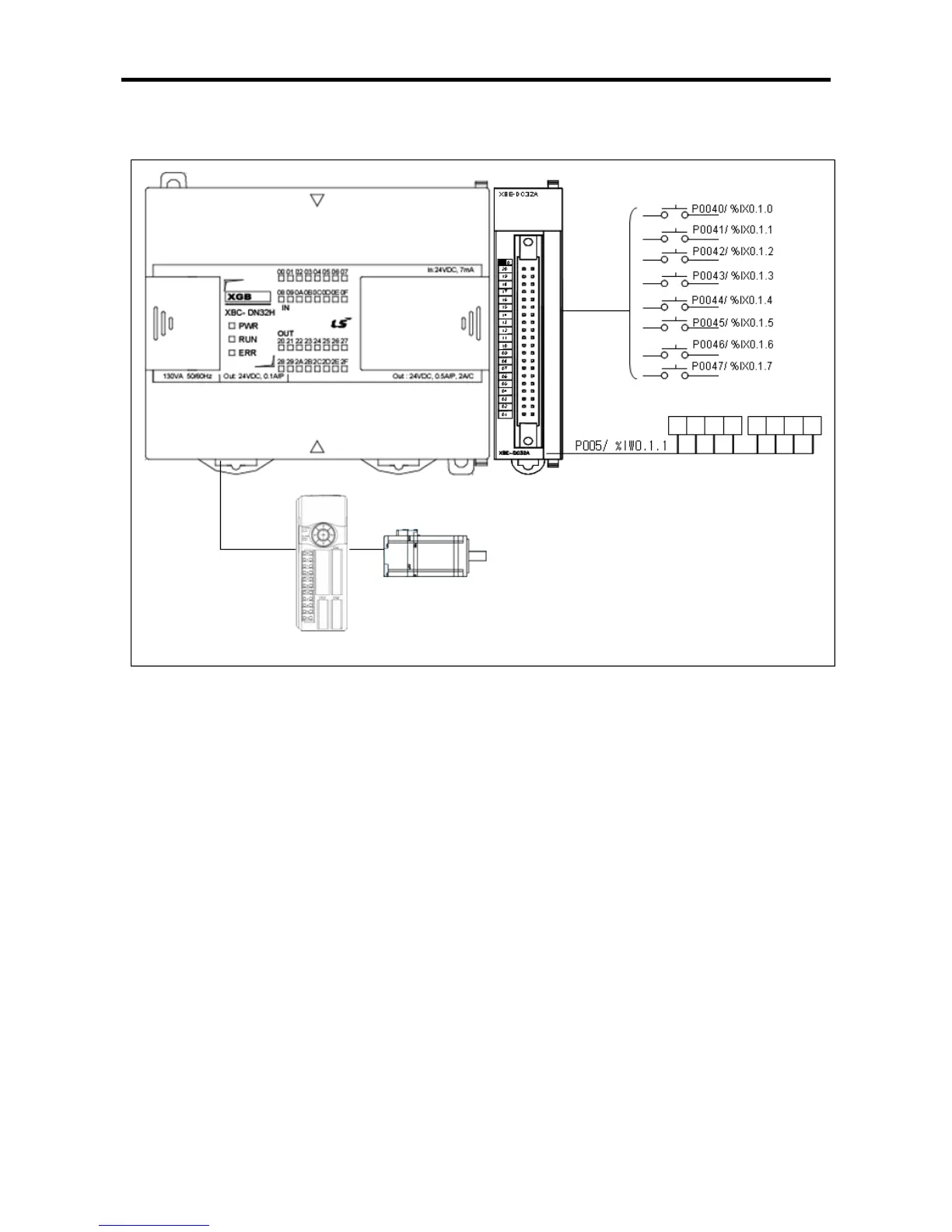
(2) XBC(XEC)-DNxxH system configuration
BCD Digital switch
Servo motor
Servo driver

Table of Contents

Related product manuals