EasyManua.ls Logo

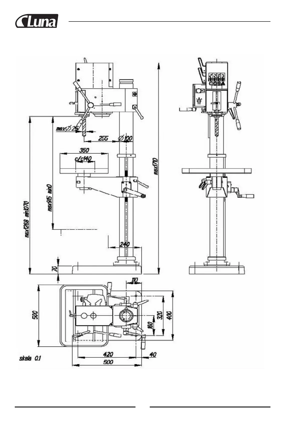
Luna MD30F - Column Model Dimensions; Column Model Overall Dimensions

Default Icon
Print Icon
To Next Page IconTo Next Page
To Next Page IconTo Next Page
To Previous Page IconTo Previous Page
To Previous Page IconTo Previous Page
Loading...
38
DIMENSION SKETCH COLUMN MODEL

Related product manuals