EasyManua.ls Logo

MacDon 9350 - Page 158

MacDon 9350
160 pages
Print Icon
To Next Page IconTo Next Page
To Next Page IconTo Next Page
To Previous Page IconTo Previous Page
To Previous Page IconTo Previous Page
Loading...
Form 46584 Issue 11/06
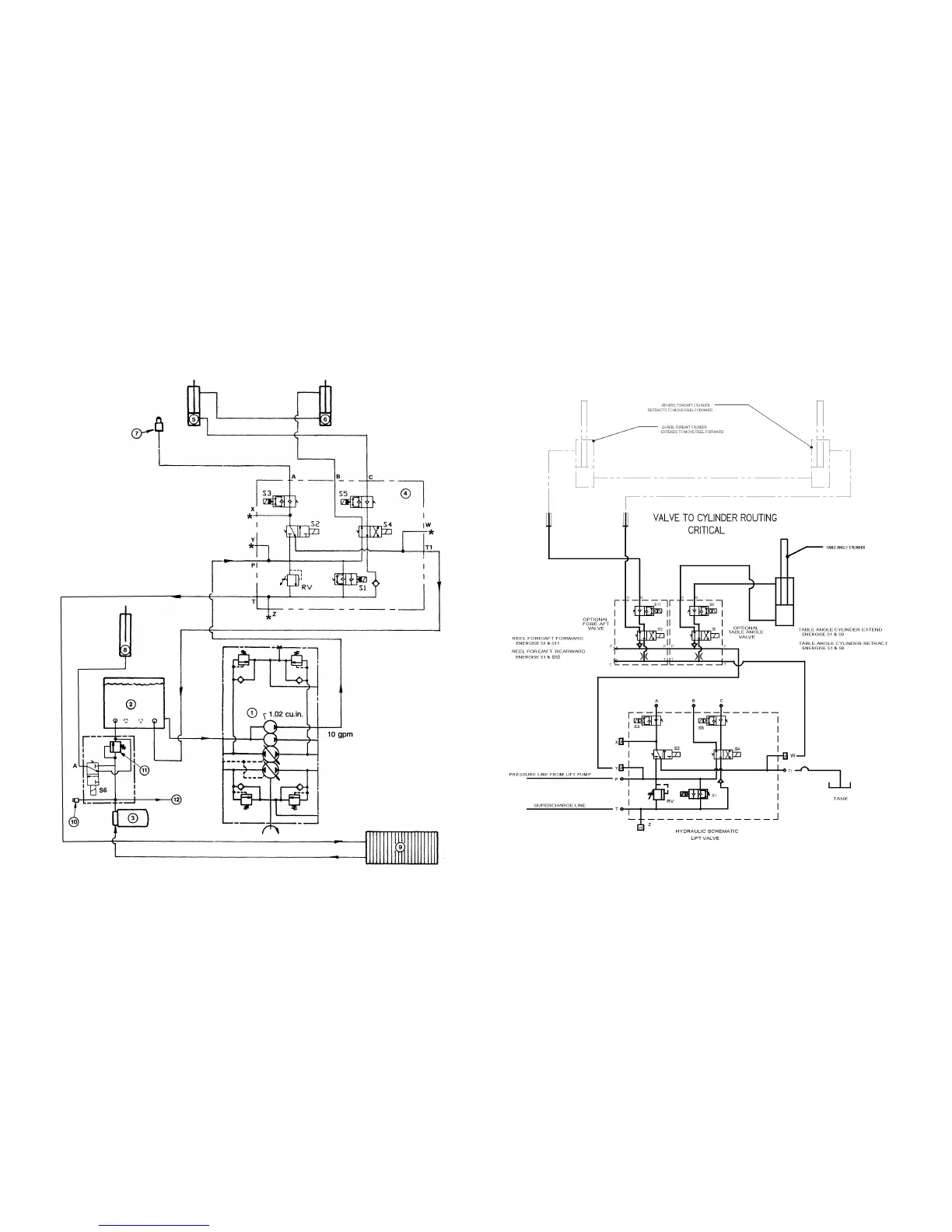
Header & Reel Lift: Hydraulic Schematic
Hydraulic Options: Reel Fore-Aft & Header Tilt
1. Pump
2. Reservoir
3. Filter
4. Cylinder Control Valve – Relief Pressure:
Model XX50/XX40 tractors – 2250 to 2500 psi
Model XX52 tractors – 2400 to 2650psi
measured as described on pg. 91)
5. Left Header Lift Cylinder
6. Right Header Lift Cylinder
7. Male Coupler – pressure to reel lift cylinders
8. Sickle Drive Clutch Cylinder
9. Oil Cooler
10. Oil Pressure Switch
11. Charge Pump Relief Valve
12. To Charge Pump for Traction Drive (see
Traction Drive Schematics)
* - For Optional Valves

Table of Contents

Related product manuals