EasyManua.ls Logo

Macurco CM-6 - Page 11

Macurco CM-6
43 pages
Print Icon
To Next Page IconTo Next Page
To Next Page IconTo Next Page
To Previous Page IconTo Previous Page
To Previous Page IconTo Previous Page
Loading...
Macurco CM-xx Operation Manual
REV 1.2.1 [34-2900-0511-6 ] 11 | Page
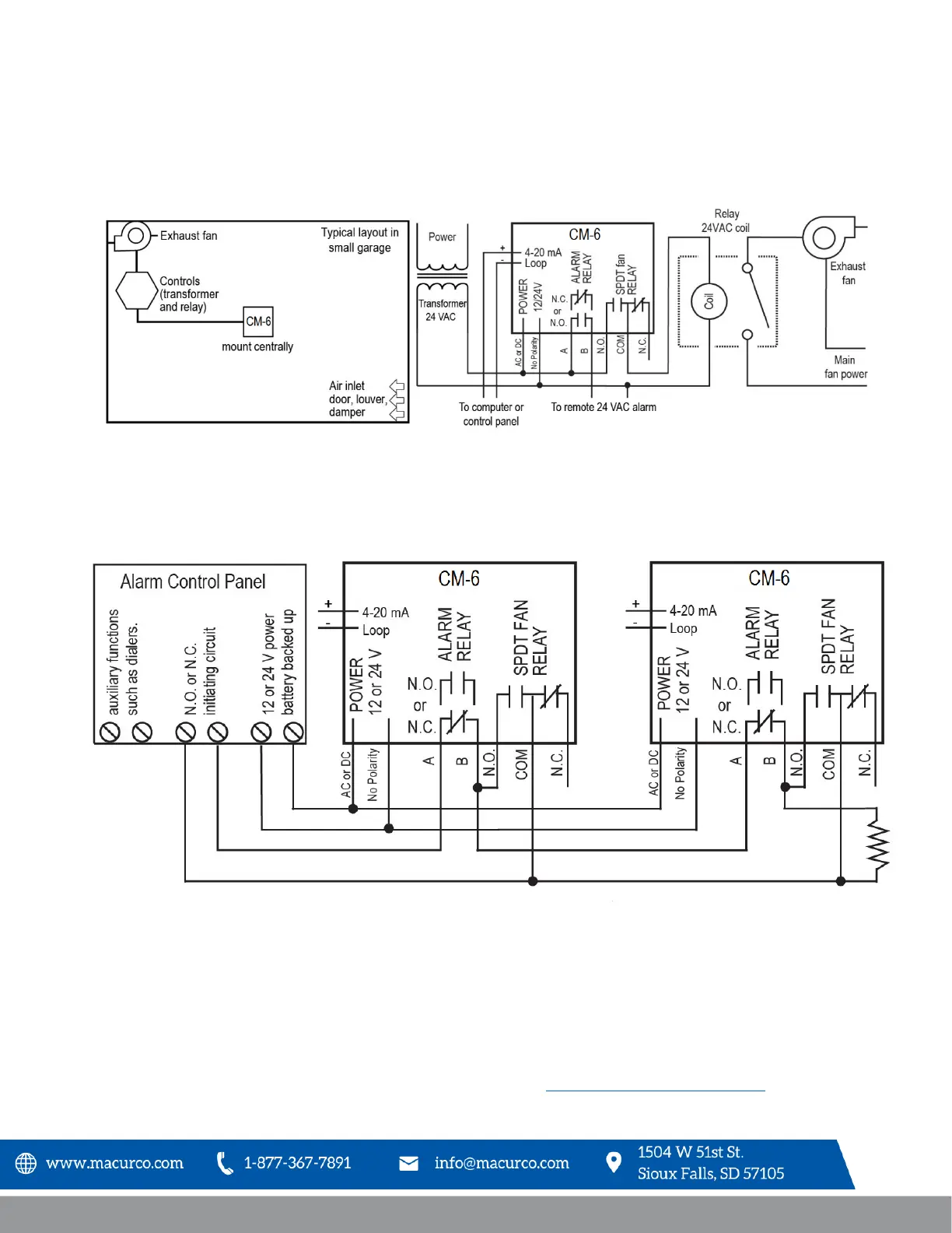
Figure 3-5 6-Series Multiple Device diagram
Figure 3-6 6-Series Stand Alone Diagram
Figure 3-7 6-Series Alternate Alarm Panel
In this application (above) the Fan or primary relay is used as a low-level alarm relay. The Alarm or secondary relay is used as a
supervisory relay when utilized in the normally closed configuration. The CM-6 monitors all critical functions of the unit
through software diagnostics that continually test and verify its operations. If a problem is found, the unit will switch to a fail-
safe/error mode or trouble condition. In this error mode the Fan* and Alarm relays will be activated indicating the trouble
condition at panel and the CM-6 display will flash the error. *See section 4.5.11 Trouble Fan Settings “tFS” for options.

Table of Contents