EasyManua.ls Logo

Magnetrol B15 - Page 37

Magnetrol B15
40 pages
Print Icon
To Next Page IconTo Next Page
To Next Page IconTo Next Page
To Previous Page IconTo Previous Page
To Previous Page IconTo Previous Page
Loading...
45-610 Displacer Type Liquid Level Switches and Proof-er
®
Switches
37

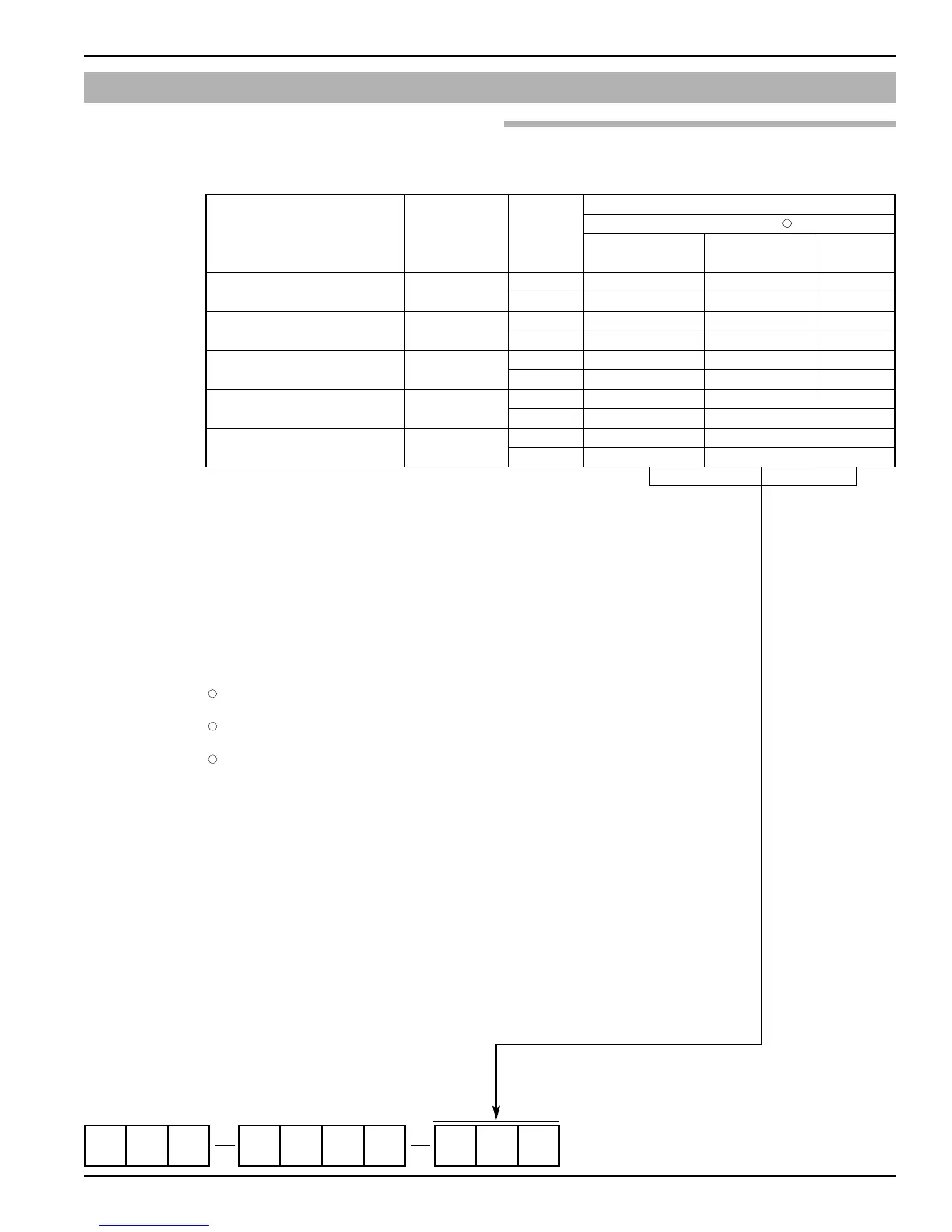
4.5 Model Numbers
 


Not available with displacer material and proof-er option codes K, L.
Not available with displacer material and proof-er option codes D, E, F, K and L.
Pressure/temperature ratings on page 13. Flanges are ANSI type.
Not available with material of construction codes M and N.
Not available with displacer material and Proof-er option codes K, L.
Not available with material of construction code 4.
316 SS flange is provided with material of construction code 4 and M.
Consult factory for NEMA 4X/7/9 cast iron housings.
Pneumatic switch mechanisms and enclosures are unavailable for Models B10
and B15 switches.
Process temperature based on +100° F (+38° C) ambient.
Uncontrolled housing heater or drain available in NEMA 4X/7/9 enclosures.
Consult factory for standard part numbers.
On steam applications, temperature down rated to +400° F (+204° C) process
at +100° F (+38° C) ambient.
125# flanges will be cast iron.
11
12
13








I

I


Series B Snap Switch
250
(121)
SPDT BLB BLK BD9
DPDT BOB BOK BG9
Series C Snap Switch
450
(232)
SPDT CLB CLK CD9
DPDT COB COK CG9
Series D Snap Switch
For DC Current Applications
250
(121)
SPDT DLB DLK DD9
DPDT DOB DOK DG9
Series F Hermetically Sealed
Snap Switch
500
(260)
SPDT FLB FLK FD9
DPDT FOB FOK FG9
Series 8 Hermetically Sealed
Snap Switch
500
(260)
SPDT 8LB 8LK 8D9
DPDT 8OB 8OK 8G9


Related product manuals