EasyManua.ls Logo

Manaras Opera-H - Electrical Drawings; Phase Operator - Hardwired Wiring

Manaras Opera-H
48 pages
Print Icon
To Next Page IconTo Next Page
To Next Page IconTo Next Page
To Previous Page IconTo Previous Page
To Previous Page IconTo Previous Page
Loading...
34
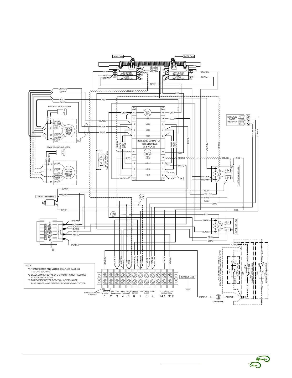
3 Electrical Drawings
3.1 1 Phase Operator – Hardwired Wiring
For technical support, please call 1-800-361-2260 or visit www.manaras.com for more information
Figure 42 - EDWG11HWLC4401

Table of Contents

Related product manuals