EasyManua.ls Logo

Manitowoc QY0605W - Page 109

Manitowoc QY0605W
175 pages
Print Icon
To Next Page IconTo Next Page
To Next Page IconTo Next Page
To Previous Page IconTo Previous Page
To Previous Page IconTo Previous Page
Loading...
Section 6 Electrical System
Part No. 80-1100-3 6-53
Problem: Water Will Not Run Into The Sump Trough
During The Freeze Cycle
Step 1 Verify water is supplied to the ice machine, and
then start a new freeze sequence by moving the ICE/
OFF/CLEAN toggle switch to OFF then back to ICE.
Step 2 Wait until the freeze cycle starts (approximately
45 seconds, the freeze cycle starts when the
compressor energizes), and then refer to chart.
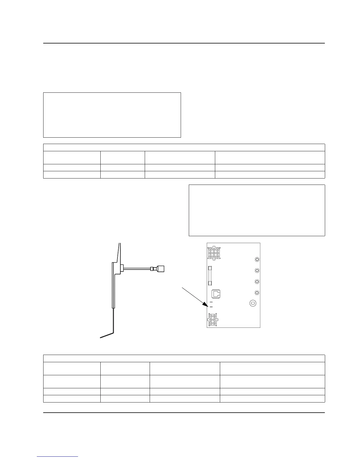
Step 3 Leave the ice machine run, then disconnect the
water level probe from control board terminal 1F.
Figure 6-28. Step 3
Important
This restart must be done prior to performing
diagnostic procedures. This assures the ice machine
is not in a freeze cycle water inlet valve safety shut-
off mode. You must complete the entire diagnostic
procedure within 6 minutes of starting.
Step 2 Checking for normal operation
Is water flowing into
the water trough?
The Water Level
Light is:
The Water Inlet Valve
Solenoid Coil is:
Cause
yes off Energized This is Normal Operation don’t change any parts
no on or off Energized Or De-Energized Proceed to step 3
Important
For the test to work properly you must wait until the
freeze cycle starts, prior to disconnecting the water
level probe. If you restart the test you must
reconnect the water level probe, restart the ice
machine, (step 1) and then disconnect the water
level probe after the compressor starts.
Step 3 Disconnect water level probe from control board terminal 1F
Is water flowing into
the water trough?
The Water Level
Light is:
The Water Inlet Valve
Solenoid Coil is:
Cause
yes off Energized The water level probe is causing the problem.
Clean or replace the water level probe.
no off Energized The water inlet valve is causing the problem.
no on or off De-Energized The control board is causing the problem.
1C
1F
YELLOW
GREEN
GREEN
RED
SV1621G SV1588
CLEAN LIGHT
WATER LEVEL LIGHT
BIN SWITCH LIGHT
HARVEST/SAFETY LIMIT
LIGHT
DISCONNECT
WATER LEVEL
PROBE FROM
TERMINAL 1F

Table of Contents

Other manuals for Manitowoc QY0605W

Related product manuals