EasyManua.ls Logo

Mannesmann Rexroth DKR03 - Page 47

Default Icon
112 pages
Print Icon
To Next Page IconTo Next Page
To Next Page IconTo Next Page
To Previous Page IconTo Previous Page
To Previous Page IconTo Previous Page
Loading...
DKR Drive Controllers Planning the cabinet 5-15
DOK-DIAX03-DKR********-PR02-EN-P
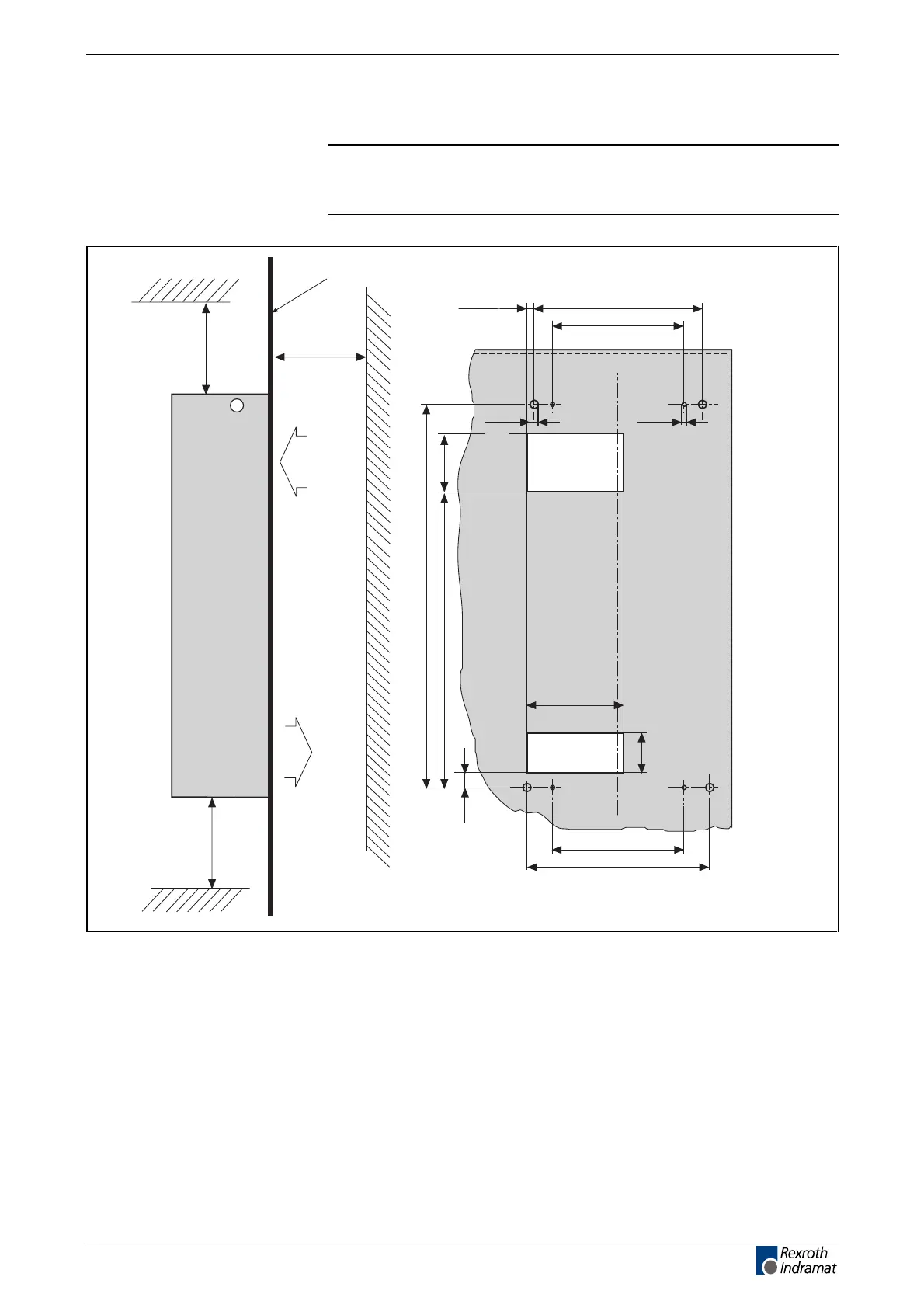
Distances, drill diagram and vents
Note: The vents in the back wall of the cabinet or mounting panel
are only required if the drive is cooled with air from outside the
unit.
11
+0,2
5,2
+0,2
(4x) (4x)
460
±0,5
360
±0,5
264
(20)
zMalkDKR4
806 165
1050
± 0,5
110
360
±0,5
500
±0,5
40
min.
80 mm
air outlet
air inlet
min.
80 mm
min.
80 mm
Looking from outside of control enclosure onto rear wall or mounting panel.
All dimensions in mm.
control enclosure rear wall
or mounting panel
Fig. 5-14: Distances, drill diagram and vents for DKR04
LSA Control S.L. www.lsa-control.com comercial@lsa-control.com (+34) 960 62 43 01

Table of Contents

Related product manuals