EasyManua.ls Logo

Mannesmann Rexroth DKR03 - Fiber Optic Cables

Default Icon
112 pages
Print Icon
To Next Page IconTo Next Page
To Next Page IconTo Next Page
To Previous Page IconTo Previous Page
To Previous Page IconTo Previous Page
Loading...
DKR Drive Controllers Accessories 7-3
DOK-DIAX03-DKR********-PR02-EN-P
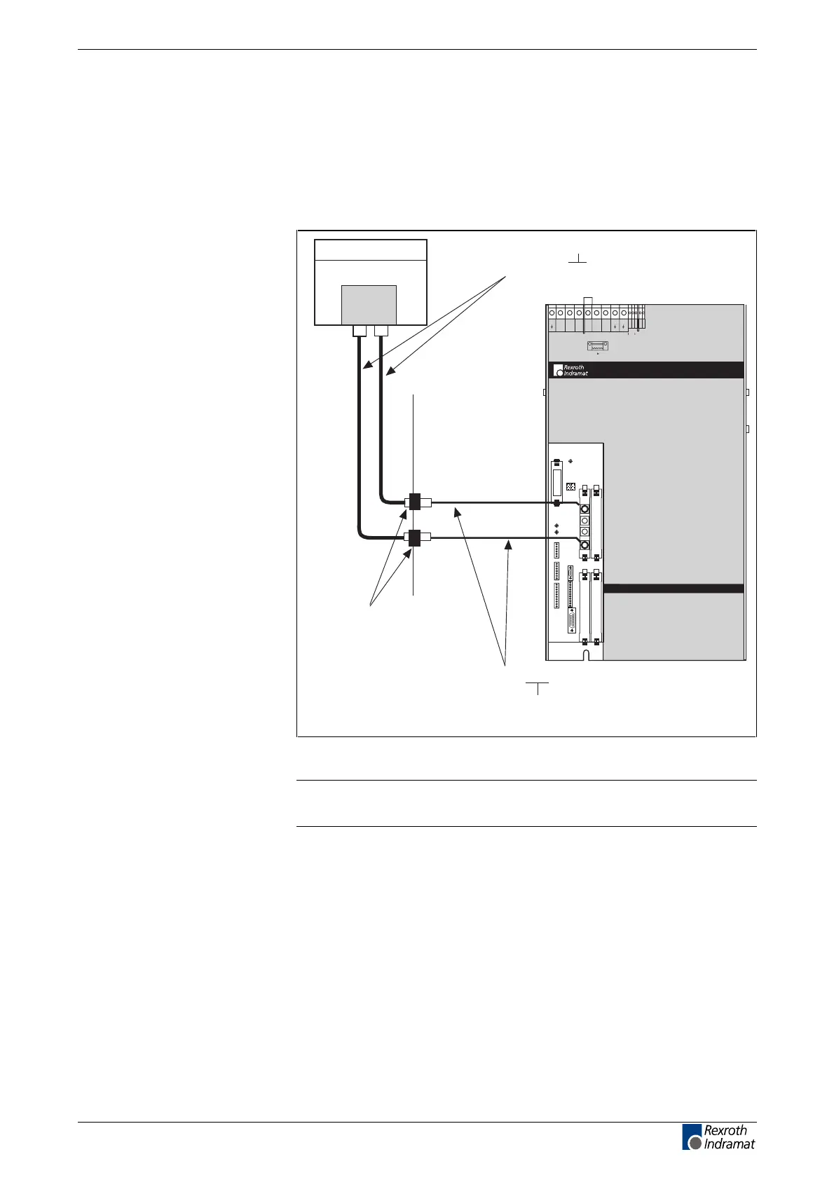
7.2 Fiber optic cables
Drives equipped with SERCOS interface are connected to higher-ranking
control units with the use of fiber optic cables.
It is necessary, however, to order these fiber optic cables (cable,
connector or a cable assembly) separately.
X4
X2
U5
U3 U4
U1 U2
X3X3
Netz/Mains
L3
L2L1
Motor
A3A1 A2
B2B1
220 V
Steuerspannung
Aux.
Voltage
NLK
X5
X10
TM+
TM-
BR
0VB
X6
(for routing internal to the control enclosure)
SERDKR
fibre optic cable rings
CNC
SERCOS
interface
Fibre optic cable plug-
in coupling unit (control
enclosure leadthrough)
part no. 252 524
IKO 982 / . . .
IKO 985 / . . .
(for routing external to the control enclosure)
ø 6 mm
ø 2 mm
Length in meters
Length in meters
X9
1
6
1
7
X8
X7
1
10
1
11
DIAX03 DKR03
H1
S2
H2
S1
Fig. 7-2: Selecting the fiber optic cable assembly
Note: For more detailed information on fiber optic cables, please see
the application manual "LWL - Handling".
LSA Control S.L. www.lsa-control.com comercial@lsa-control.com (+34) 960 62 43 01

Table of Contents

Related product manuals