EasyManua.ls Logo

Mannesmann Rexroth DKR03 - Dzb01

Default Icon
112 pages
Print Icon
To Next Page IconTo Next Page
To Next Page IconTo Next Page
To Previous Page IconTo Previous Page
To Previous Page IconTo Previous Page
Loading...
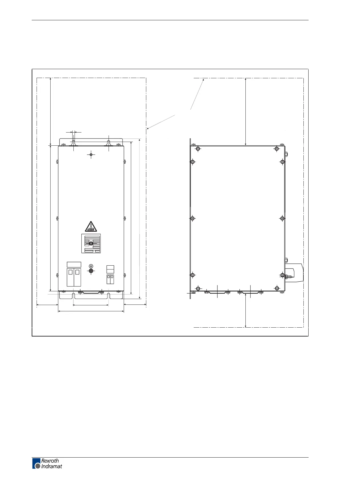
5-16 Planning the cabinet DKR Drive Controllers
DOK-DIAX03-DKR********-PR02-EN-P
DZB01
Unit dimensions
free space
440
460
480
6,5
200
200100
INDRAMAT
Type
kW
?
Amp.
%ED bei 120s Spield.
W-Nr.
Nr.
Last
R1
R2
blower
+ -
50
50
90
130
Fig. 5-15: Unit dimensions DZB01
LSA Control S.L. www.lsa-control.com comercial@lsa-control.com (+34) 960 62 43 01

Table of Contents

Related product manuals