EasyManua.ls Logo

Mannesmann Rexroth DKR03 - Additional Dimensions When Cooling with a Duct

Default Icon
112 pages
Print Icon
To Next Page IconTo Next Page
To Next Page IconTo Next Page
To Previous Page IconTo Previous Page
To Previous Page IconTo Previous Page
Loading...
DKR Drive Controllers Planning the cabinet 5-17
DOK-DIAX03-DKR********-PR02-EN-P
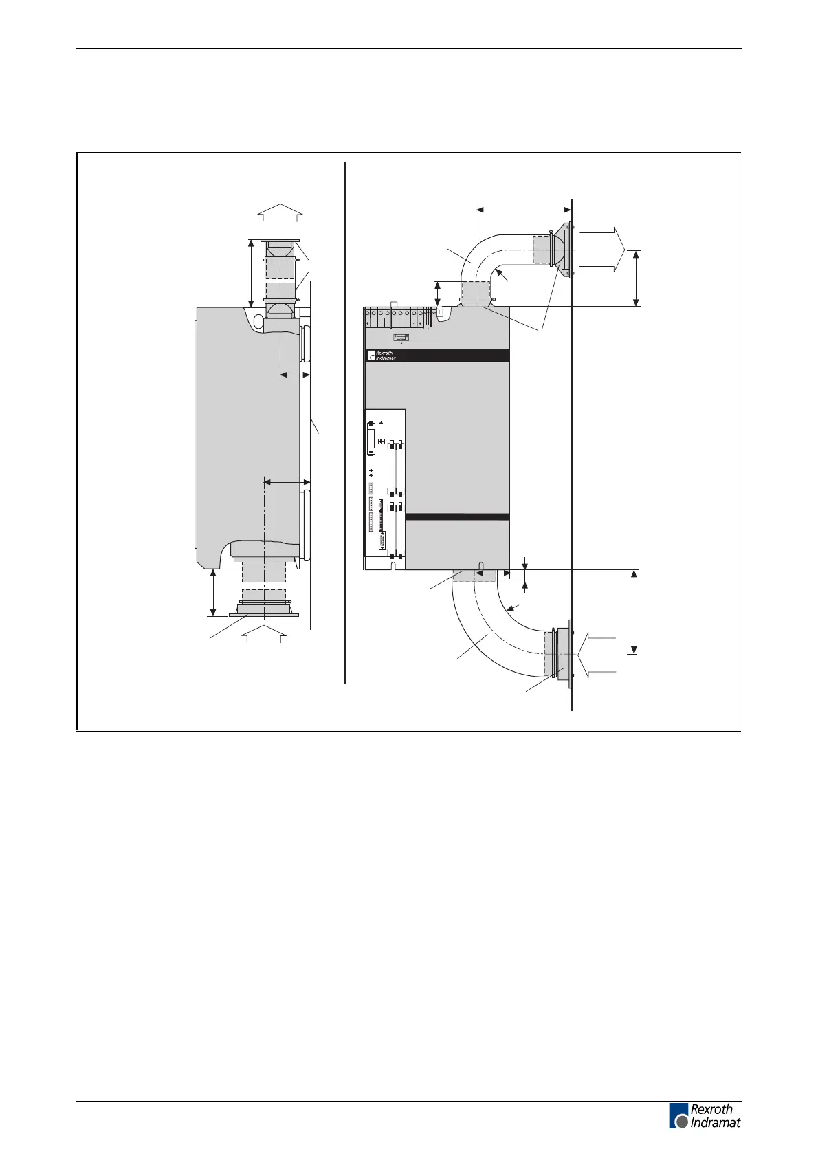
5.4 Additional dimensions when cooling with a duct
H1
X4
X2
U5
U3
S2
U4
U1 U2
H2
S1
X3X3
Netz/Mains
L3
L2L1
Motor
A3A1 A2
X
B2B1
220 V
Steuerspannung
Aux.
Voltage
NLK
X5
X10
TM+
TM-
BR
0VB
X6
bend radius
min. R=80
bend radius
min. R=125
35
min. 225
air inlet
93,
63
260
min. 183
air outlet
zMSchDKR
110
119
air inlet
air outlet
duct Ø 80
part no.: 239312
flange
adapter
for duct
cooling
duct Ø 125
part no.: 238354
flange 2
• all dimensions in mm
• ducts must be ordered separately
170
side view,
ventilation upstairs / downstairs
side view,
ventilation to the right
flange 2
flange
mounting panel
X9
1
6
1
7
X8
X7
1
10
1
11
99
DIAX03 DKR
71
Fig. 5-16: Additional dimensions when cooling with a duct - DKR02/DKR03
LSA Control S.L. www.lsa-control.com comercial@lsa-control.com (+34) 960 62 43 01

Table of Contents

Related product manuals