EasyManua.ls Logo

Mannesmann Rexroth DKR03 - Page 50

Default Icon
112 pages
Print Icon
To Next Page IconTo Next Page
To Next Page IconTo Next Page
To Previous Page IconTo Previous Page
To Previous Page IconTo Previous Page
Loading...
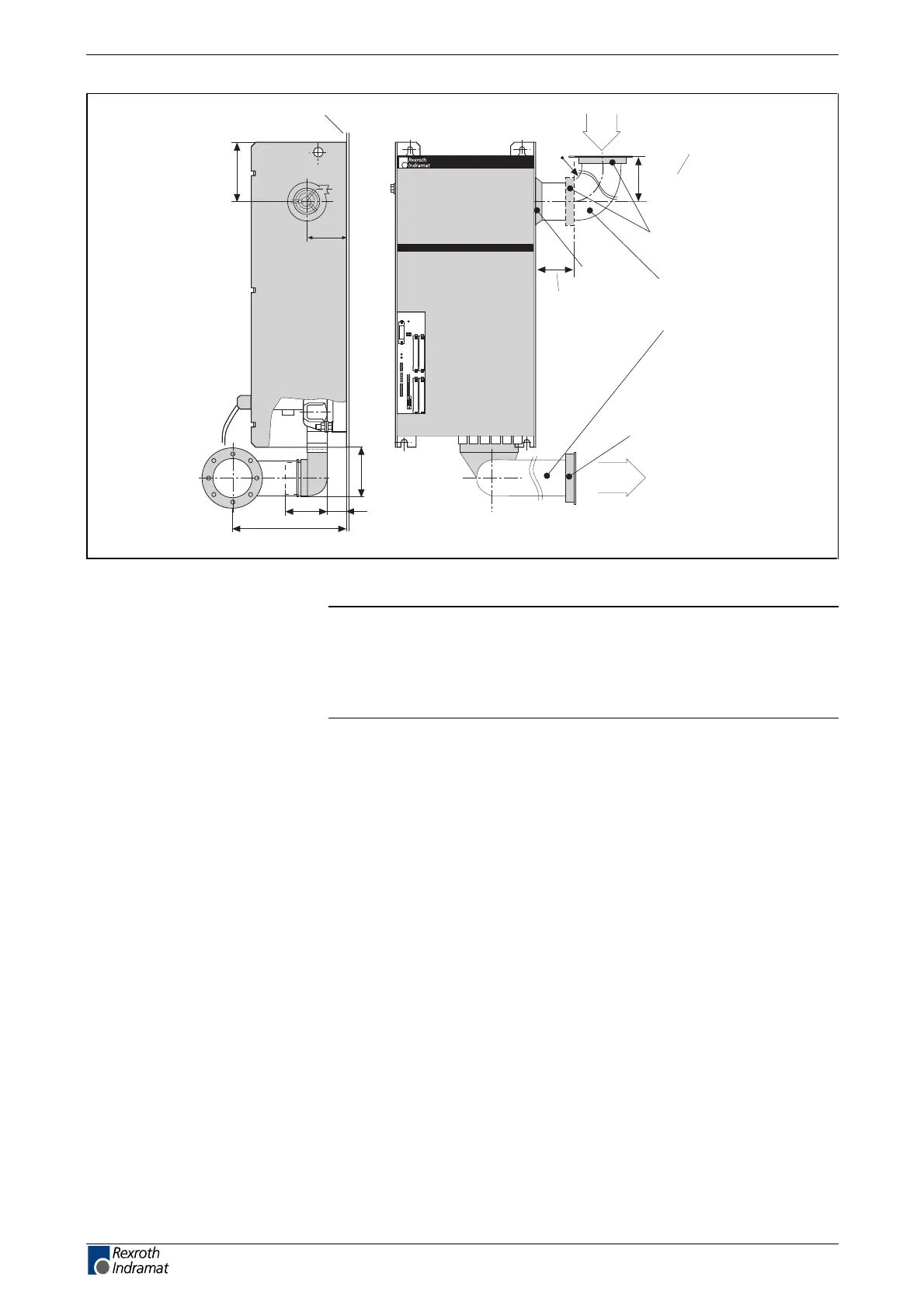
5-18 Planning the cabinet DKR Drive Controllers
DOK-DIAX03-DKR********-PR02-EN-P
MZSDKR4
air inlet
duct Ø 125
part no.: 238354
(is not a part of
M2-RAC 2.2)
air outlet
min.260
bend
radius
min.
R=125
min.
125
113
173
150
mounting
clearance with
horizontal air inlet
mounting
clearance
with vertikal
air inlet
flange 2
flange I
flange 2
25
1
6
X9
1
7
X8
1
10
X7
1
11
X3X3
H2
S1
U1 U3
U4
U5
U2
S2
X4
X2
H1
mind. 365
156
closed mounting panel
(without vents)
DIAX03 DKR 04
Fig. 5-17: Additional dimensions when cooling with a duct - DKR04
Note: All parts required for mounting, including screws, gaskets,
flanges, ... are included in the mechanical accessories kit
M2-RAC 2.2.
The ducts are not included in the mechanical accessories kit
but Rexroth Indramat can also supply them upon request.
LSA Control S.L. www.lsa-control.com comercial@lsa-control.com (+34) 960 62 43 01

Table of Contents

Related product manuals