EasyManua.ls Logo

Mannesmann Rexroth DKR03 - Page 76

Default Icon
112 pages
Print Icon
To Next Page IconTo Next Page
To Next Page IconTo Next Page
To Previous Page IconTo Previous Page
To Previous Page IconTo Previous Page
Loading...
6-22 Planning the electrical connections DKR Drive Controllers
DOK-DIAX03-DKR********-PR02-EN-P
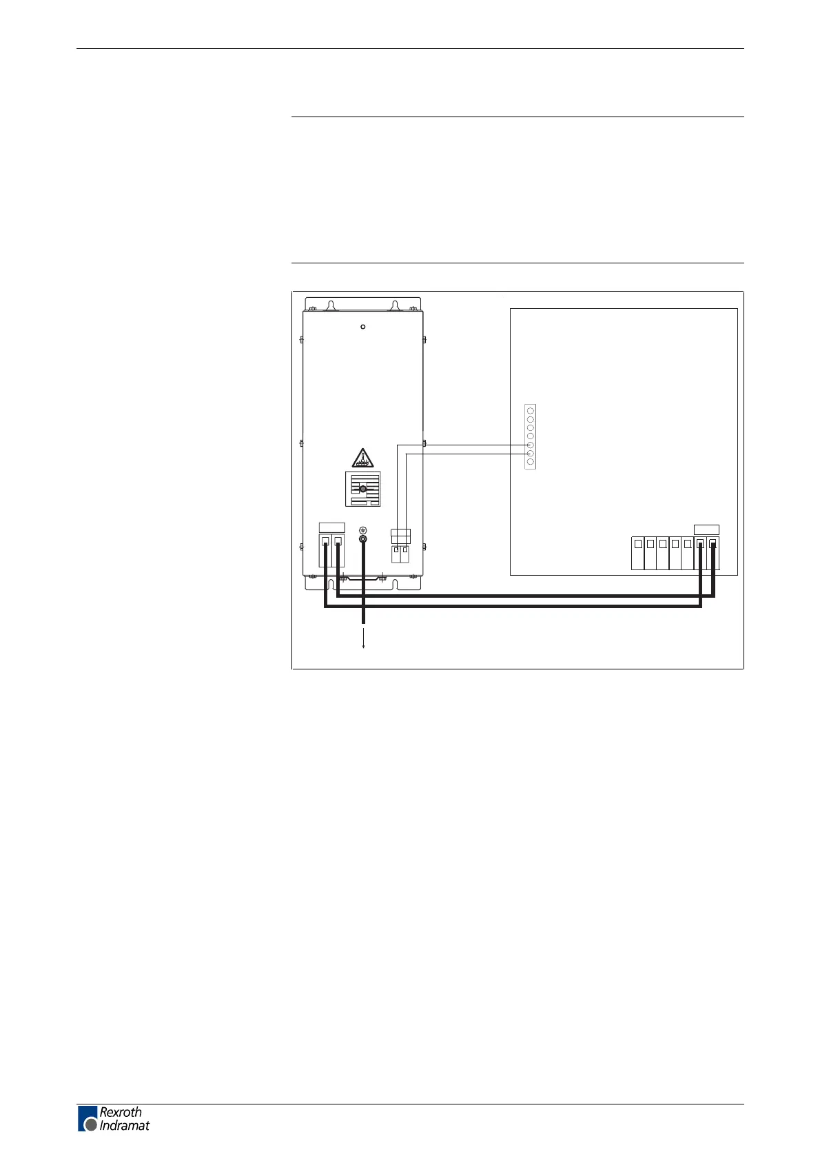
Note: Only DKR04.1 devices have terminal connectors for the brake
resistor connection (DZB01.1).
DZB01.1 is the brake resistor for DKR04.1. The electronic
system required to run the DZB01.1 has only been integrated
in the “E version” (DKR04.1-WxxxE). "E devices" cannot be
operated without DZB01.1. If you try to operate an “E device”
without DZB01.1, the controller stops with the error message
"F820 Braking resistor overload".
INDRAMAT
Type
kW
?
Amp.
%ED bei 120s Spield.
W-Nr.
Nr.
Last
R1
R2
blower
+ -
to control enclosure -
grounding potential
R1
R2
DZB01.1
DKR04.1-WxxxE
X10
X8
1
2
3
4
5
6
7
apdzb.fh7
Fig. 6-23: Connection diagram DZB01.1ÇÈDKR04.1 (strongly simplified
illustration)
Brake resistor connection
X10/R1 and X10/R2
LSA Control S.L. www.lsa-control.com comercial@lsa-control.com (+34) 960 62 43 01

Table of Contents

Related product manuals