EasyManua.ls Logo

Marathon V-4830 - Page 24

Marathon V-4830
50 pages
Print Icon
To Next Page IconTo Next Page
To Next Page IconTo Next Page
To Previous Page IconTo Previous Page
To Previous Page IconTo Previous Page
Loading...
1 OPERATION
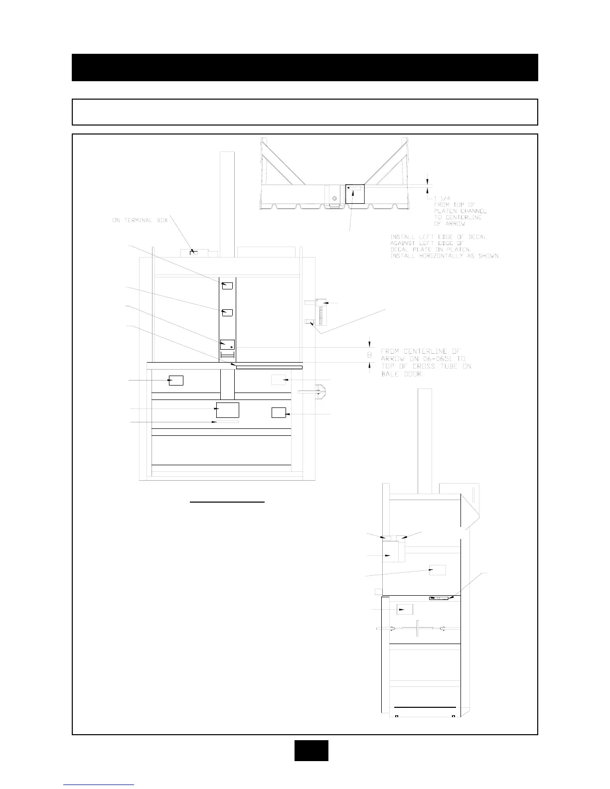
DECAL PLACEMENT FOR V-4830 & V-6030
U
L
R
U
L
LISTED
16BF
C
DOVER
VERNON, AL YERINGTON, NV CLEARFIELD, PA
1−800−633−8974
VERTICAL BALER
PATENT # 5,044,271
MODEL
SERIAL #
THIS PRODUCT COMPLIES WITH
ANSI Z245.5−1990.
R
R
FRONT VIEW
OF PLATEN
06-0101,
OR 06-0102,
OR 06-0103
06-0652
06-0132
06-0119
PLACE ON
PANEL BOX
BRACKET
06-0121
06-0118
06-0275
FRONT VIEW
SIDE VIEW
06-0120
06-0101,
OR 06-0102,
OR 06-0103
06-0130
06-0133
BOTH SIDES
06-0117
06-0097
06-0039
06-0651
06-0116
06-0115
06-0126
06-0147
NOTE: Installation is not
complete until all decals are
in place.
1-21

Related product manuals