EasyManua.ls Logo

Master Forge 3218LTN - Page 88

Master Forge 3218LTN
104 pages
Print Icon
To Next Page IconTo Next Page
To Next Page IconTo Next Page
To Previous Page IconTo Previous Page
To Previous Page IconTo Previous Page
Loading...
INSTRUCCIONES DE FUNCIONAMIENTO
88
Lowes.com/masterfor
g
e
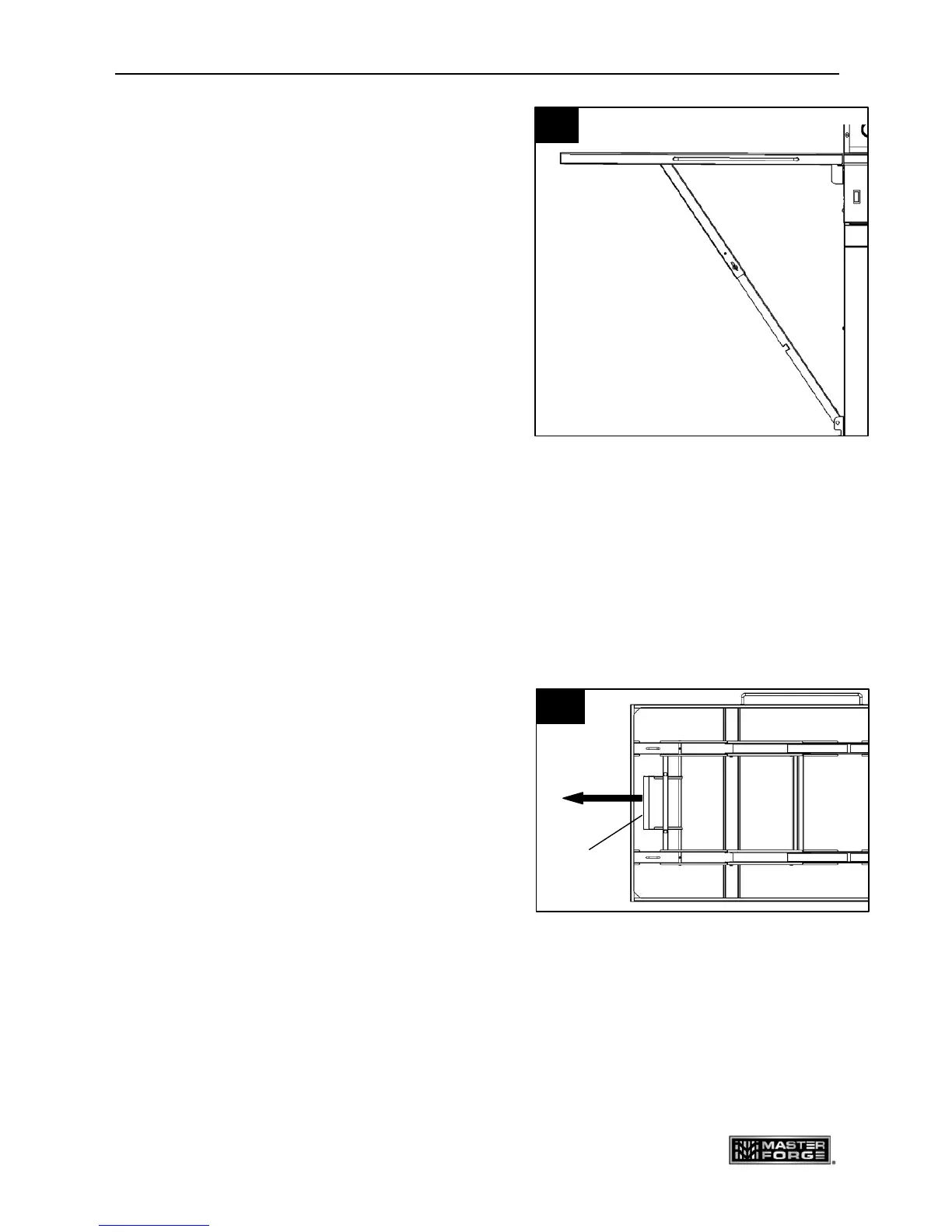
3. La mesa quedará fija en la posición donde los
soportes de la mesa casi estén en línea.
Escuchará un clic cuando estén fijos. (Fig. 41)
Para plegar la mesa para aparador, siga los
siguientes pasos:
4. Jale la manija bajo la mesa. (Fig. 42)
42
Manejar
41

Table of Contents

Other manuals for Master Forge 3218LTN

Related product manuals