EasyManua.ls Logo

Master Spas LSX 700 - Wiring Schematic

Master Spas LSX 700
68 pages
Print Icon
To Next Page IconTo Next Page
To Next Page IconTo Next Page
To Previous Page IconTo Previous Page
To Previous Page IconTo Previous Page
Loading...
17DO NOT DIVE.
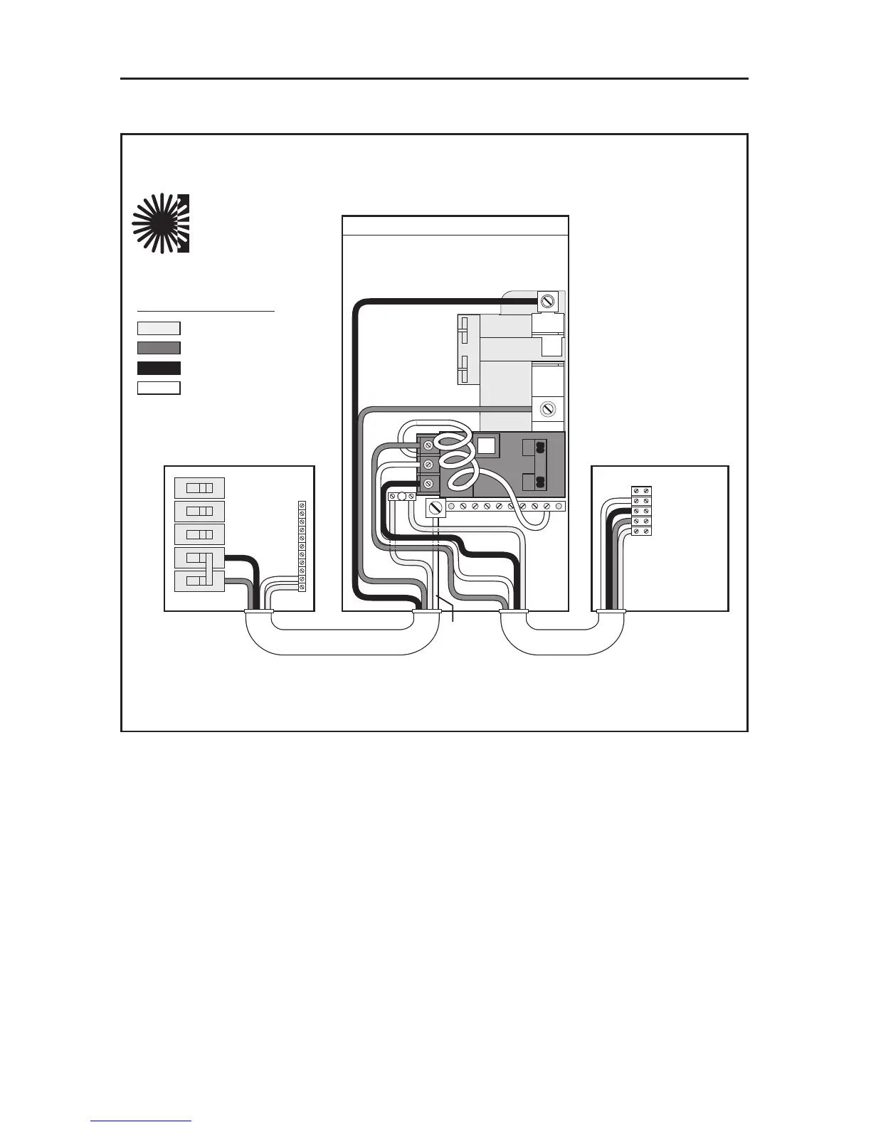
WIRING SCHEMATIC - 240 VOLT SPA HOOK-UP
ON
OFF
ON
OFF
ON
OFF
ON
OFF
ON
OFF
50 5050
TEST
50
1
2
3
4
5
WHITE (NEUTRAL)
BLACK (HOT)
RED (HOT)
GREEN (GROUND)
Instruments
Balboa
Incorporated
Wire Key
House Breaker Box
G.F.C.I Breaker Box
Spa Control Pack
Green (Ground)
Red (Hot)
Black (Hot)
White (Neutral)
NOTE: For a 240 V
dedicated hook-up, the
white neutral wire is
not required between
the G.F.C.I. and the
system box.
GRN
GRN (GROUND)
RED (HOT)
BLK (HOT)
BLK (HOT)
RED (HOT)
RED (HOT)
WHT (NEUTRAL)
WHT
WHT
BLK (HOT)
GRN (GROUND)
TB1
IDF00007.mac 6/17/97
* Actual wiring of GFCI will vary by manufacturer of GFCI. The GFCI shown is a Square D.
Improper wiring of GFCI may result in permanent damage to spa control pack. Repair /
replacement of Spa Control Pack is not covered under warranty when damage results from
improper wiring. Always refer to the wiring diagram inside the Spa Control Pack for proper
power connection.

Related product manuals