EasyManua.ls Logo

Masterbuilt 20075315 - Page 30

Masterbuilt 20075315
30 pages
Print Icon
To Previous Page IconTo Previous Page
To Previous Page IconTo Previous Page
Loading...
9
ASSEMBLAGE
ÉTAPE 7
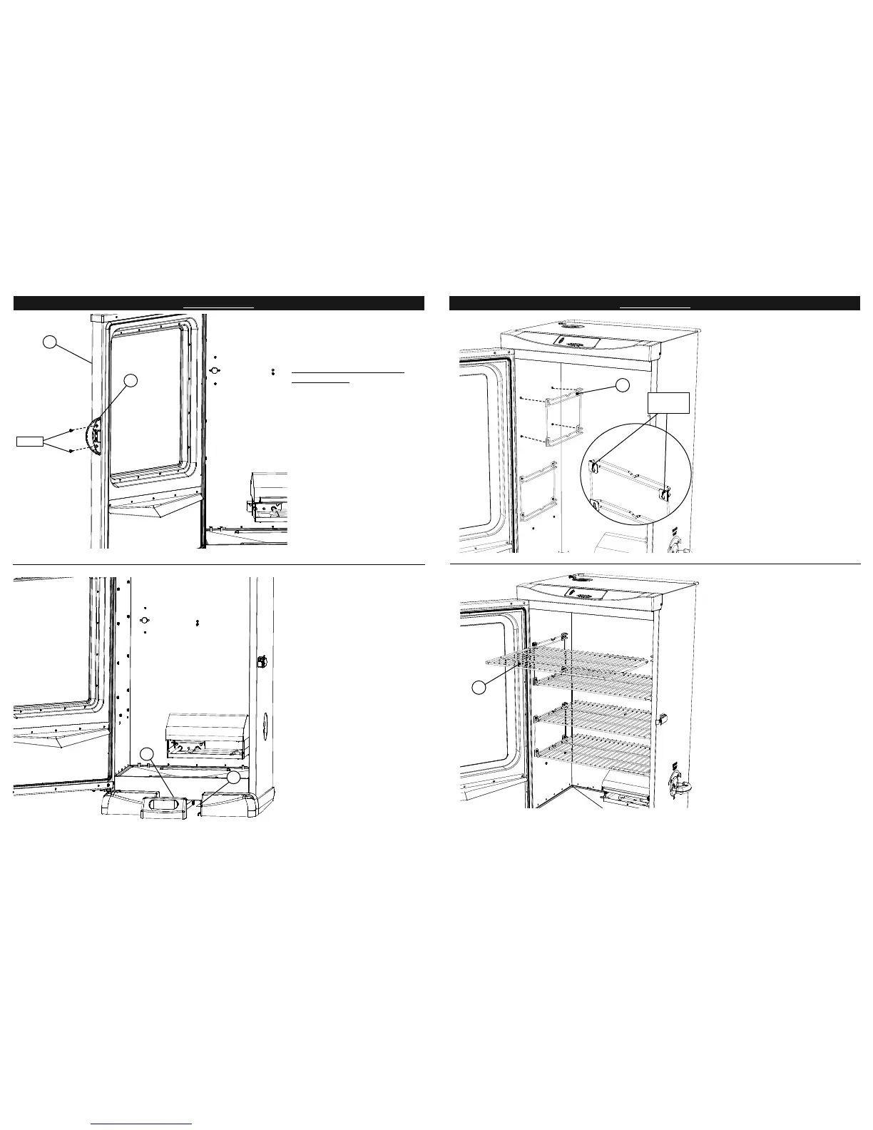
Positionnez la poignée de porte
(20) sur la porte avec hublot, de la
façon illustrée. Fixez-la au moyen
de vis à tête plate (M4X8).
Poignée de porte peut venir
pré-assemblé.
ÉTAPE 8
Faites glisser le bac à graisse (13)
sur les supports du bac à graisse
(22).
20
19
13
22
M4X8
10
ASSEMBLAGE
ÉTAPE 9
Alignez les trous de serrure sur
les supports à grille (6) avec
les goujons qui se trouvent à
l’intérieur du bâti du fumoir, de la
façon illustrée. Enfoncez le sup-
port à grille pour le xer en place.
Recommencez l’étape pour les
autres supports à grille sur les
deux côtés.
ÉTAPE 10
Mettez les grilles de fumage (4)
dans le fumoir, de la façon illus-
trée.
6
4
TROUS DE
SERRURE

Related product manuals