EasyManua.ls Logo

Mastervolt WHISPER 6 ULTRA

Mastervolt WHISPER 6 ULTRA
48 pages
To Next Page IconTo Next Page
To Next Page IconTo Next Page
To Previous Page IconTo Previous Page
To Previous Page IconTo Previous Page
Loading...
DIAGRAMS & DRAWINGS
34 Copyright © 2009 Mastervolt / May 2009 / Whisper 6/8/12/16 Ultra for mobile applications / EN
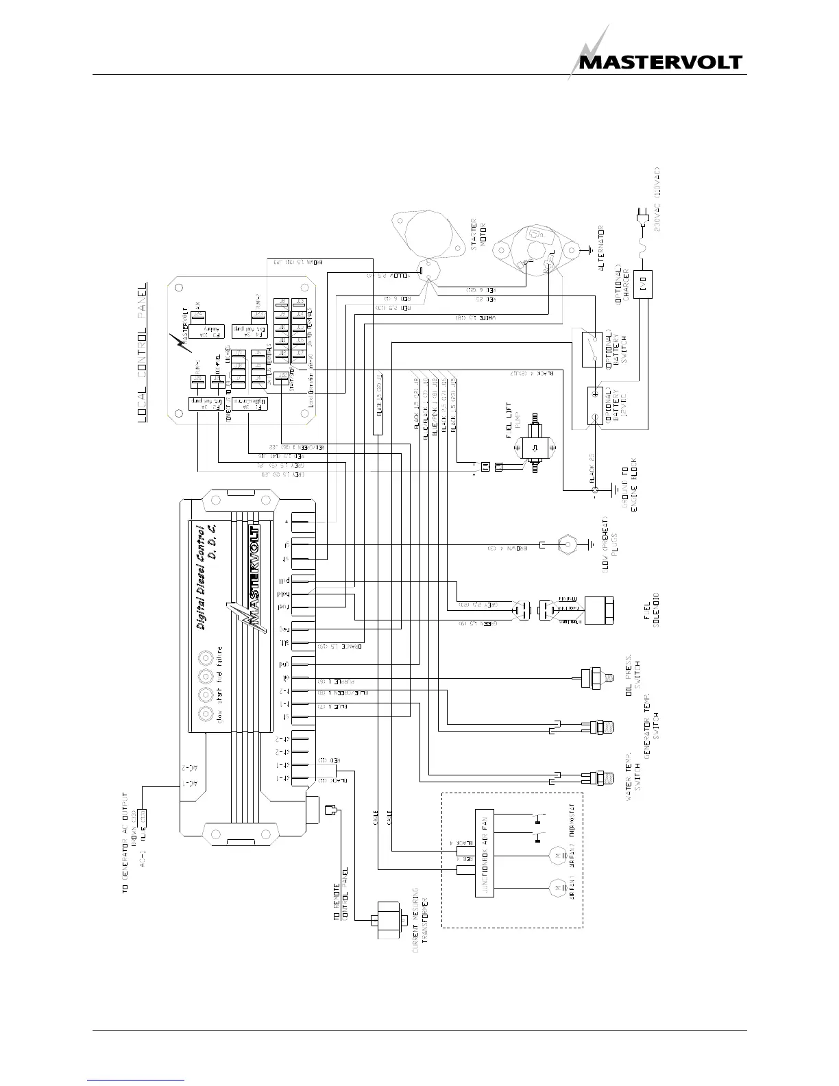
4.2 LAYOUT GENERATOR CONTROL FOR WHISPER 6 ULTRA WITH 12VDC FAN
Fig. 40: Layout generator control for Whisper 6 Ultra with 12VDC radiator fan
Optional control for two speeds fans.
See chapter 4.9

Other manuals for Mastervolt WHISPER 6 ULTRA

Related product manuals