EasyManua.ls Logo

Mastervolt WHISPER 6 ULTRA

Mastervolt WHISPER 6 ULTRA
48 pages
To Next Page IconTo Next Page
To Next Page IconTo Next Page
To Previous Page IconTo Previous Page
To Previous Page IconTo Previous Page
Loading...
DIAGRAMS & DRAWINGS
40 Copyright © 2009 Mastervolt / May 2009 / Whisper 6/8/12/16 Ultra for mobile applications / EN
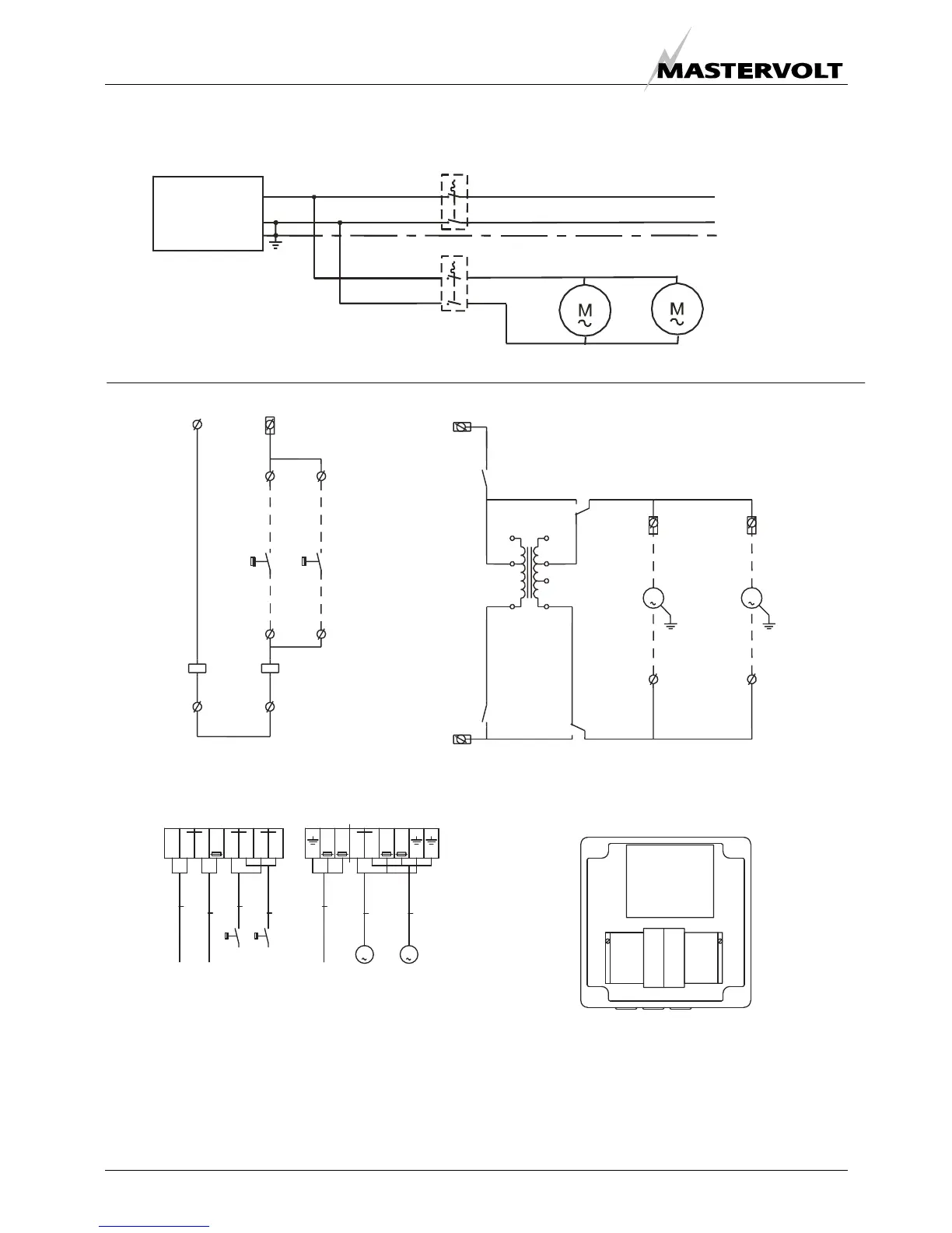
4.8 ELECTRICAL DIAGRAM RADIATOR FAN CONTROL 230VAC
TERMINAL BLOCK
GENERATOR CONTACT
PUMP (PCB)
THERMOSTAT GENERATOR
THERMOSTAT ENGINE
RADIATOR COOLER
GENERATOR
BATTERY
230VAC
ENGINE
RADIATOR COOLER
GENERATOR
12VDC
M
230VAC
M
230VAC
5A
16
CU1,5
+
1
-
2
CU0,75
80-70?C
CU0,75
45-35?C
CU0,75
6
-
3
5A
45 87
CU1,5
230VAC
CU1.5
6,3A
11
6,3A
12 1413 15
5A
CU1.5
DIMENTION BOX: 270x270x180 MM
JUNCTION BOX AIR FANS
12VDC K1 K2
230/115VAC
200VA
TRAFO
230VAC
Fig. 45: Electrical diagram fan control using 230V
AC radiator fans – with two speeds fans (optional)
FUSE 5A
FUSE 6.3A
FUSE 6.3A
FUSE 5A
FUSE 5A
15 16
5 6
7
8
13 14
11
1
4
2
3
K2
K1
K2
K1
BAT.
+12V
PUMP
+12V
GENERATOR
230VAC (L1)
K1
BAT.
12V
GENERATOR
230VAC (N)
230VAC
230VAC
45-35°C80-70°C
THERMOSTAT COOLER
ENGINE GENERATOR
RADIATOR COOLER
ENGINE
RADIATOR COOLER
GENERATOR
K2
12
A2A2
A1 A1
11
11
14
14
12
41
41
42
44
44
230V
120V
115V
110V
0
0
TRANSFORMER
230V/115VAC
200VA
400V
M M
GENERATOR
L1
N
MAIN CIRCUIT
BREAKER
AC LOAD
CIRCUIT
BREAKER
AIR FANS
6A
Fig. 44: Electrical diagram for standard fan control
using 230V AC radiator fans

Other manuals for Mastervolt WHISPER 6 ULTRA

Related product manuals