EasyManua.ls Logo

Matsui MCD7W19E - Ohjauspaneeli

Matsui MCD7W19E
132 pages
Print Icon
To Next Page IconTo Next Page
To Next Page IconTo Next Page
To Previous Page IconTo Previous Page
To Previous Page IconTo Previous Page
Loading...
96
Delay Timer Delicate Start/Pause
(3 sec.)
Drying
Cooling
3h.
6h.
9h.
End
Extra Dry
CoonSynthecs
Cupboard Dry
Off
10 min
30 min
60 min
Jeans
Cupboard Dry
Iron Dry
Delicate
Mix
Baby Care
Iron Dry
Shirts 12'
Express 29'
MCD7W19E
Refresh
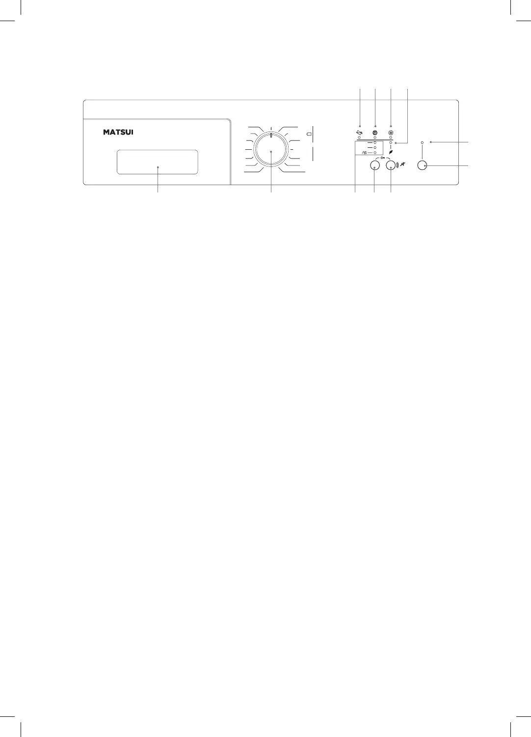
Ohjauspaneeli
1. Vesisäiliö
Tyhjennä jokaisen kuivausvaiheen jälkeen.
2. Ohjelmavalitsin
Kierrä valitaksesi haluamasi ohjelman tai
kytkeäksesi kuivausrummun pois päältä.
3. Vesisäiliön merkkivalo
Syttyy, kun vesisäiliö on täynnä. On kuitenkin
suositeltavaa tyhjentää vesisäiliö jokaisen
kuivausvaiheen jälkeen.
4. Nukkasuodattimen merkkivalo
Merkkivalo syttyy, kun nukkasuodatin on
puhdistettava. On kuitenkin suositeltavaa
puhdistaa nukkasuodatin jokaisen
kuivausvaiheen jälkeen.
5. Jäähdyttimen merkkivalo
Merkkivalo syttyy, kun jäähdytin on
puhdistettava.
6. Herkät vaatteet -merkkivalo
Syttyy, kun herkät vaatteet -toiminto on valittu.
7. Käynnistä/Keskeytä-merkkivalo
Merkkivalo vilkkuu kun ohjelma on valmis tai
keskeytetty.
Merkkivalo palaa, kun ohjelma on käynnissä.
8. Käynnistä/Keskeytä-painike
Paina käynnistääksesi kuivausohjelman.
Paina keskeyttääksesi kuivausohjelman.
9. Herkät vaatteet -painike
Paina valitaksesi herkkien vaatteiden
ohjelman.
Äänimerkki Päälle/Pois
Pidä Herkät vaatteet -painiketta painettuna
3 sekuntia kytkeäksesi äänimerkin päälle tai
pois.
10. Viiveaikapainike
Paina valitaksesi viiveajaksi joko 3, 6 tai 9
tuntia. Yläpuolella oleva merkkivalo näyttää
mikä viiveaika on valittu.
Lapsilukko
Paina Herkät vaatteet - ja Viiveajastin-
painikkeita yhtä aikaa 3 sekuntia
aktivoidaksesi tai deaktivoidaksesi
lapsilukkotoiminnon.
11. Edistyminen- ja Viiveajastin-merkkivalot
Nämä merkkivalot näyttävät, onko viiveajastin
asetettu, ja kun kuivausvaihe käynnistyy, ne
näyttävät vaiheen edistymisen. Kuivaus -
Jäähdytys - Loppu.
1
6
7
8
910112
3 4 5
Matsui Condenser Tumble Dryer MCD7W19E Manual.indb 96 14/02/2019 16:57

Table of Contents

Related product manuals