EasyManua.ls Logo

MAX power MPOP5720/US - Electrical Wiring Connection Examples; Windlass and Thruster Wiring Diagrams

Default Icon
18 pages
Print Icon
To Next Page IconTo Next Page
To Next Page IconTo Next Page
To Previous Page IconTo Previous Page
To Previous Page IconTo Previous Page
Loading...
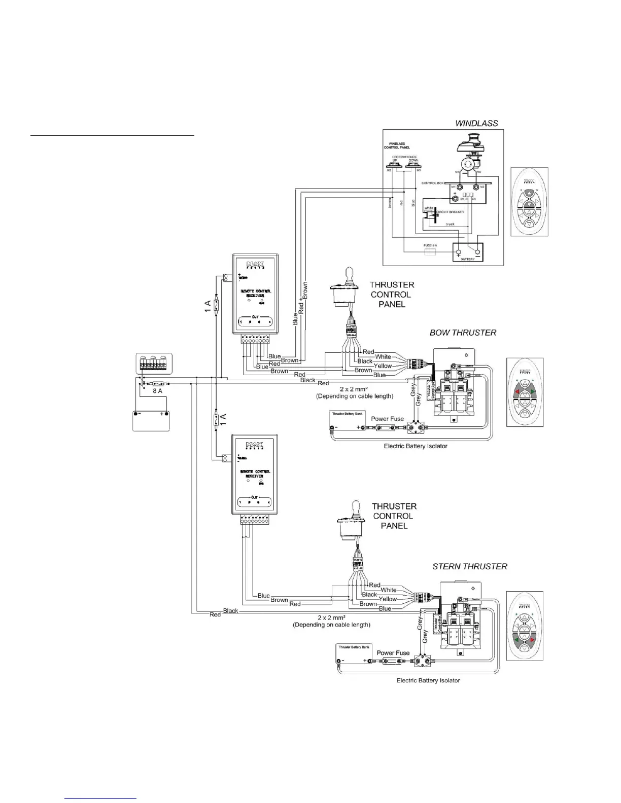
ELECTRICAL WIRING CONNECTION
Examples given for:
Max Power Bow Thruster CT60/CT80
Max Power Stern Thruster CT60/CT80
Lofrans Windlass (3 terminals motor)
For other makes and models of equipment please refer
to the manufacturer’s wiring diagram
CONTROL BOX AND REMOTE
CONTROL RECEIVER SUPPLY:
To be connected to seperate
battery bank (advised)
Yacht Main DC
Equipment
Breaker Board
Independent Battery Bank
for Control Circuit Supply
13