EasyManua.ls Logo

MAXA MI26A1 - Page 28

MAXA MI26A1
33 pages
Print Icon
To Next Page IconTo Next Page
To Next Page IconTo Next Page
To Previous Page IconTo Previous Page
To Previous Page IconTo Previous Page
Loading...
MAXA DC Fan Coil Unit
46
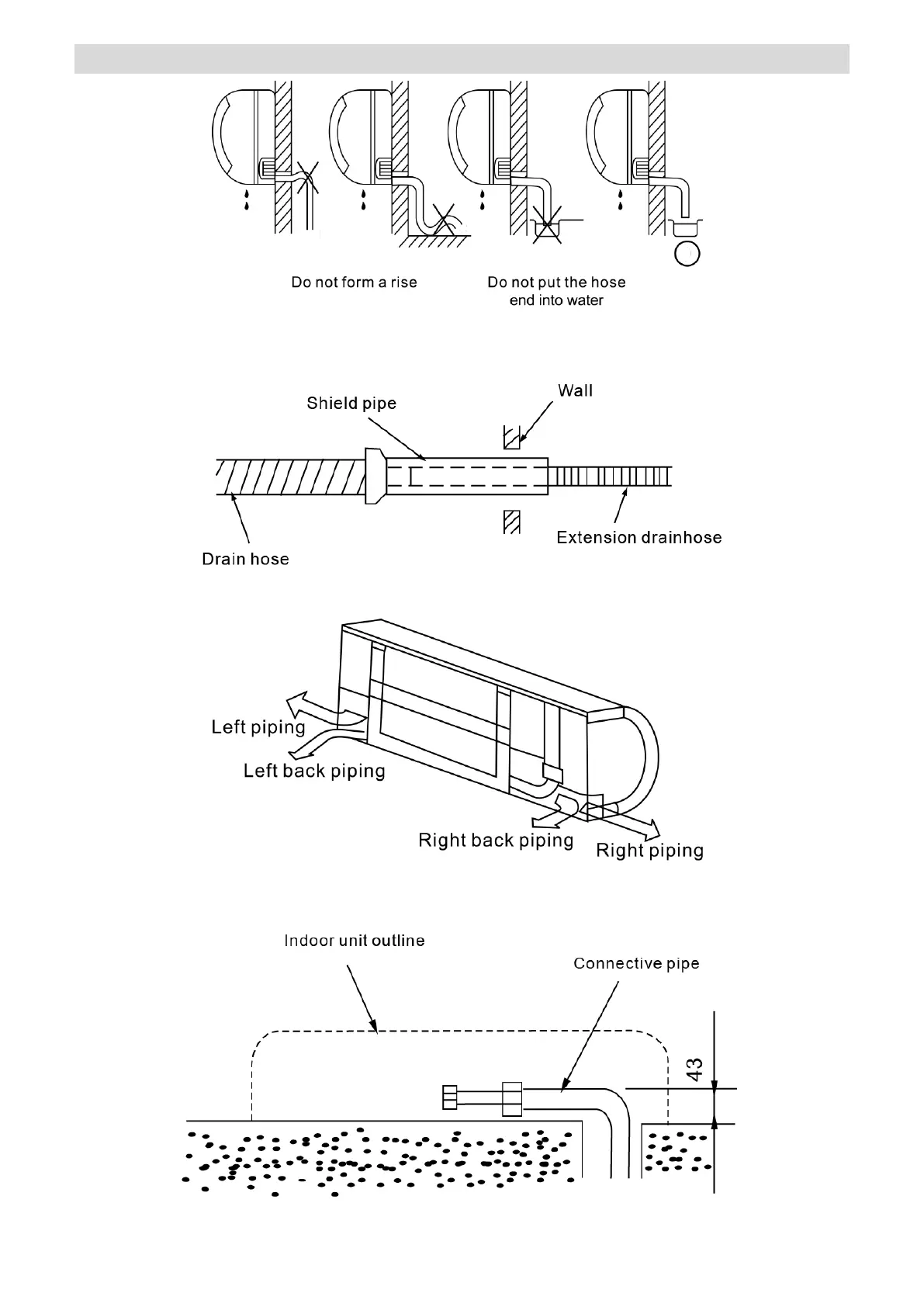
When connection extension drain hose, insulate the connecting part of extension drain hose with a shield
pipe.
II. Connection pipe
For the left-hand and rear-left-hand piping, install the piping as shown. Bend the connective pipe to be
laid at 43mm height or less from the wall.

Related product manuals