EasyManua.ls Logo

Maytag *TC - Clearances to Combustible Materials; Installation in a Garage

Maytag *TC
52 pages
Print Icon
To Next Page IconTo Next Page
To Next Page IconTo Next Page
To Previous Page IconTo Previous Page
To Previous Page IconTo Previous Page
Loading...
6
For installations above 2,000 ft., the furnace should have
a sea level input rating large enough that it will meet the
heating load after deration for altitude.
Two-stage furnaces operate at two input rates to better
meet heating loads. The lower heating rate (low fi re) is
65% of the high fi re rate. The greatest degree of control
over the furnace can be gained by controlling it with a two
stage thermostat. This allows the thermostat to directly
request either high or low fi re. However, it is possible to
operate the furnace using a single stage thermostat. In
this application the furnace control can be set to increase
from low to high fi re, based on a timer. See Autostaging
for Single Stage Thermostats (page 26).
Furnaces are properly sized to meet the expected
maximum heating load. But this load occurs infrequently.
So, during more moderate weather, the furnace is likely to
use low fi re a considerable part of the time. This is normal
and has the benefi t of quieter and more effi cient operation.
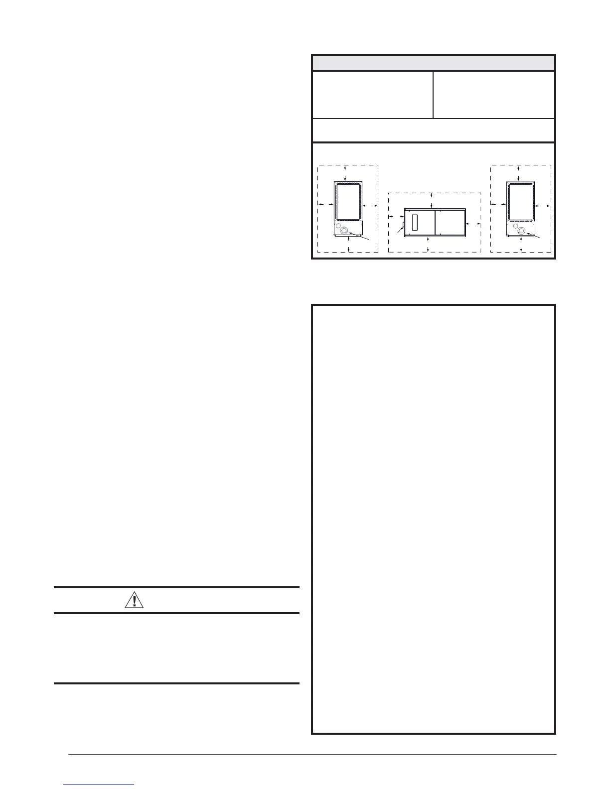
Clearances to Combustible Materials
This furnace is Design Certifi ed in the U.S. and Canada
by CSA International for the minimum clearances to
combustible materials. NOTE: The furnace is listed for
installation on combustible or non-combustible fl ooring.
However, wood is the only combustible fl ooring allowed
for installation. Downfl ow models must use the appropriate
subase kit when installing over a wood fl oor. To obtain model
number and specifi c clearance information, refer to the
furnace rating plate, located inside of the furnace cabinet.
Access for positioning and servicing the unit must be
considered when locating unit. The need to provide
clearance for access to panels or doors may require
clearance distances over and above the requirements.
Allow 24 inches minimum clearance from the front of
the unit. However 36 inches is strongly recommended.
See Table 1 for minimum clearance requirements.
Table 1. Minimum Clearances to
Combustible Materials
CLEARANCES TO COMBUSTIBLE MATERIALS
Left Side..................0 Inches Top ..........................0 Inches
Right Side ...............0 Inches Front ......................
4 Inches
Vent ......................... 0 Inches Back ........................0 Inches
Allow 24 in. minimum clearance for servicing. Recommended
clearance is 36 in.
TOP
FRONT
UPFLOW
APPLICATIONS
HORIZONTAL
APPLICATIONS
VENT
TOP
FRONT
DOWNFLOW
APPLICATIONS
SIDE
TOP
BOTTOM
VENT
VENT
FRONT
BACK
BACK
SIDE
LEFT SIDE
LEFT SIDE
RIGHT SIDE
RIGHT SIDE
The information listed below is for reference purposes only
and does not necessarily have jurisdiction over local or state
codes. Always consult with local authorities before installing
any gas appliance.
Combustion and Ventilation Air
US: National Fuel Gas Code (NFGC), Air for Combustion
and Ventilation
• CANADA: Natural Gas and Propane Installation Codes
(NSCNGPIC), Venting Systems and Air Supply for
Appliances
Duct Systems
US and CANADA: Air Conditioning Contractors Association
(ACCA) Manual D, Sheet Metal and Air Conditioning
Contractors National Association (SMACNA), or American
Society of Heating, Refrigeration, and Air Conditioning
Engineers (ASHRAE) Fundamentals Handbook
Electrical Connections
US: National Electrical Code (NEC) ANSI/NFPA 70
CANADA: Canadian Electrical Code CSA C22.1
Gas Piping and Gas Pipe Pressure Testing
US: NFGC and National Plumbing Codes
• CANADA: NSCNGPIC
General Installation
US: Current edition of the NFGC and the NFPA 90B. For
copies, contact the National Fire Protection Association
Inc., Batterymarch Park, Quincy, MA 02269; or American
Gas Association, 400 N. Capitol, N.W., Washington DC
20001 or www.NFPA.org
CANADA: NSCNGPIC. For a copy, contact Standard Sales,
CSA International, 178 Rexdale Boulevard, Etobicoke
(Toronto), Ontario, M9W 1R3 Canada
Safety
US: (NFGC) NFPA 54–1999/ANSI Z223.1 and the Installation
Standards, Warm Air Heating and Air Conditioning Systems
ANSI/NFPA 90B.
CANADA: CAN/CGA-B149.1 and .2–M00 National Standard
of Canada. (NSCNGPIC)
Installation in a Garage
This Gas-fi red furnace may be installed in a residential
garage with the provision that the burners and igniter
are located no less than 18 inches (457mm) above the
oor. The furnace must be located or protected to prevent
physical damage by vehicles.
WARNING:
Do not place combustible material on or against
the furnace cabinet or within 6 inches of the
vent pipe. Do not place combustible materials,
including gasoline or any other fl ammable
vapors and liquids, in the vicinity of the furnace.

Table of Contents

Related product manuals