EasyManua.ls Logo

McQuay AGR 070A - Page 34

McQuay AGR 070A
60 pages
Print Icon
To Next Page IconTo Next Page
To Next Page IconTo Next Page
To Previous Page IconTo Previous Page
To Previous Page IconTo Previous Page
Loading...
34
AGR 070A through 100A Product Manual AGR-3
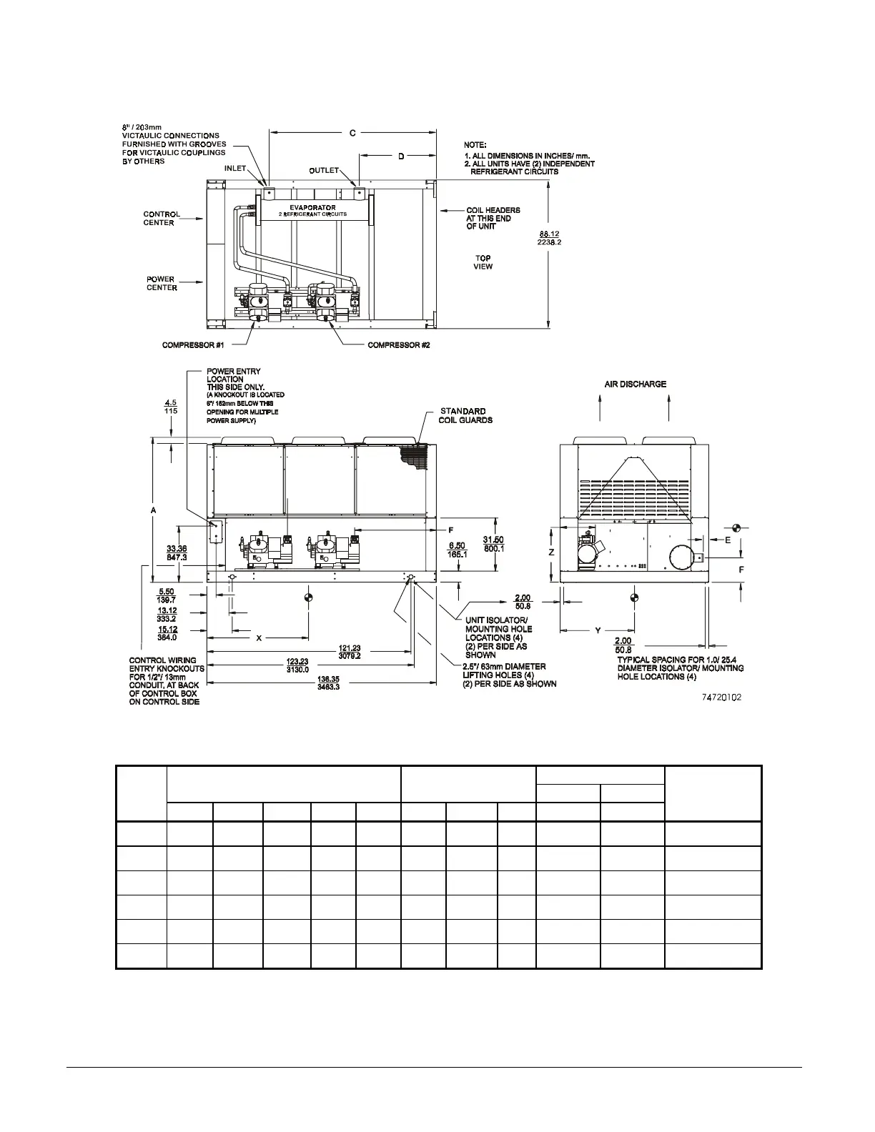
Figure 13, Dimensions AGR 075AS through 100AS
Weights
Dimensions
Center of Gravity
inch (mm)
Operating Shipping
AGR
Model
Number
A C D E F X Y Z lb. (kg) lb. (kg)
Additional Weight
for Copper
Fin Coils lb (kg)
075AS
96.2
(2444)
99.2
(2520)
45.2
(1148)
4.4
(112)
17.5
(444)
60.4
(1534)
42.2
(1072)
37.3
(947)
5506
(2495)
5360
(2429)
1245
(565)
080AS
96.2
(2444)
99.2
(2520)
45.2
(1148)
4.4
(112)
17.5
(444)
60.4
(1534)
41.5
(1054)
36.9
(937)
5740
(2605)
5595
(2540)
1245
(565)
085AS
96.2
(2444)
99.2
(2520)
45.2
(1148)
4.4
(112)
17.5
(444)
60.4
(1534)
40.8
(1036)
36.2
(919)
5920
(2685)
5775
(2620)
1245
(565)
090AS
96.2
(2444)
99.2
(2520)
45.2
(1148)
3.8
(96)
17.5
(444)
60.4
(1534)
42.0
(1067)
36.8
(935)
6185
(2805)
6010
(2725)
1245
(565)
095AS
96.2
(2444)
99.2
(2520)
45.2
(1148)
3.8
(96)
17.5
(444)
60.4
(1534)
42.0
(1067)
35.4
(899)
6195
(2810)
6020
(2730)
1245
(565)
100AS
96.2
(2444)
99.2
(2520)
45.2
(1148)
3.8
(96)
17.5
(444)
60.4
(1534)
42.0
(1067)
35.4
(899)
6195
(2810)
6020
(2730)
1245
(565)

Other manuals for McQuay AGR 070A

Related product manuals