EasyManua.ls Logo

McQuay AGR 070A - Dimensional Data

McQuay AGR 070A
60 pages
Print Icon
To Next Page IconTo Next Page
To Next Page IconTo Next Page
To Previous Page IconTo Previous Page
To Previous Page IconTo Previous Page
Loading...
Product Manual AGR-3 AGR 070A through 100A
33
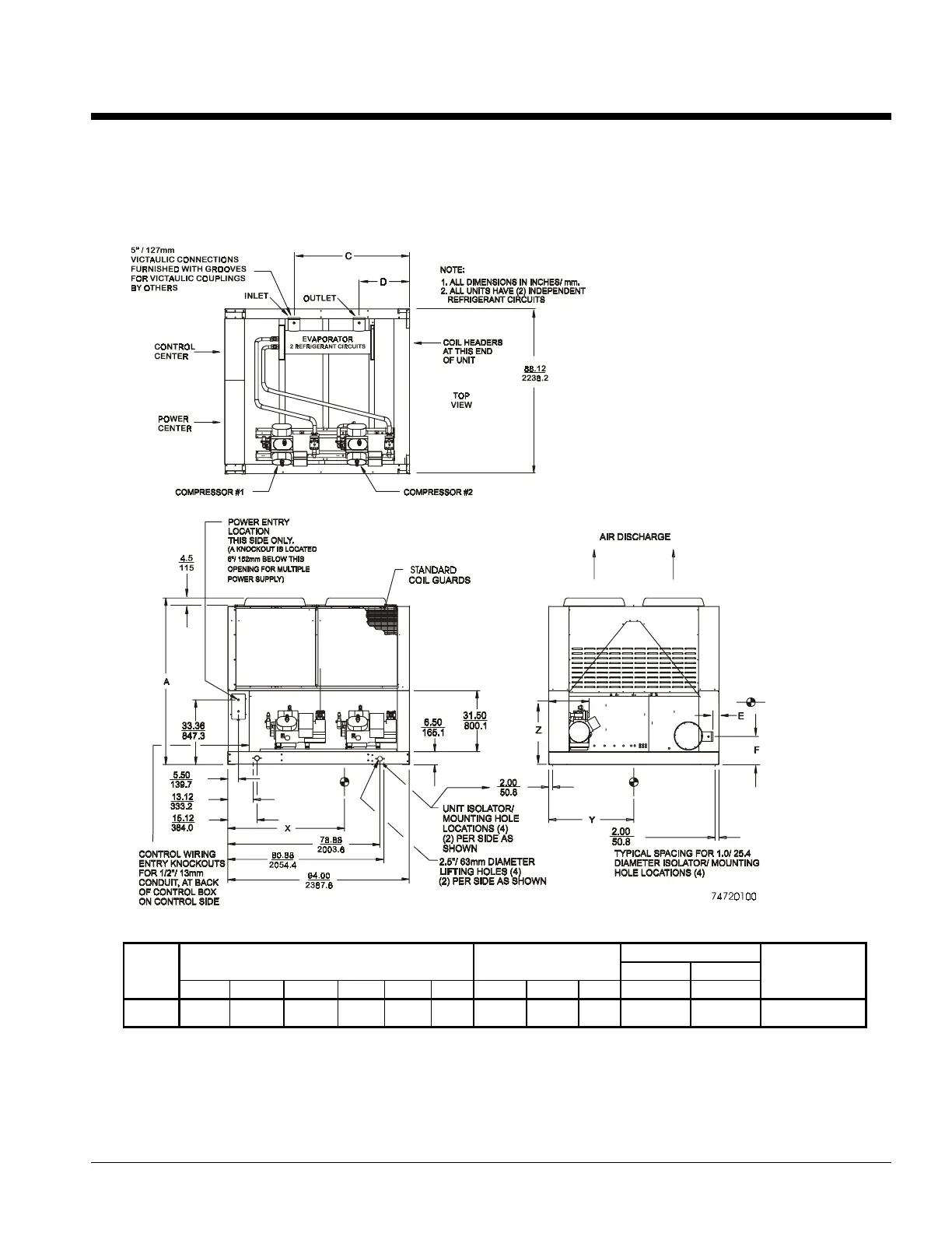
Dimensional Data
Packaged Chiller, AGR-AS
Figure 12, Dimensions AGR 070AS
Weights
Dimensions
Center of Gravity
inch (mm)
Operating Shipping
AGR
Model
Number
A B C D E F X Y Z lb (kg) lb (kg)
Additional Weight
with Copper
Fin Coils lb (kg)
070AS
96.2
(2444)
91.7
(2329)
60.0
(1525)
23.9
(607)
4.3
(108)
16.0
(406)
45.0
(1143)
41.8
(1062)
38.8
(986)
4755
(2155)
4650
(2107)
830
(375)

Other manuals for McQuay AGR 070A

Related product manuals