EasyManua.ls Logo

McQuay AGR 100AS - Figure 25, MicroTech Sensor Layout

McQuay AGR 100AS
100 pages
Print Icon
To Next Page IconTo Next Page
To Next Page IconTo Next Page
To Previous Page IconTo Previous Page
To Previous Page IconTo Previous Page
Loading...
36 AGR 070A through 100A IOMM AGR-1
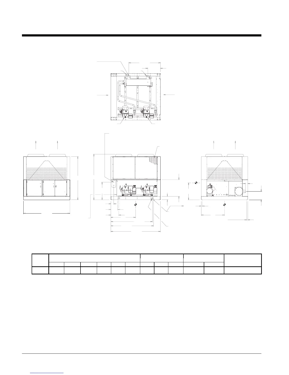
Dimensional Data
Figure 26, Dimensions AGR 070AS
4” (107mm) (AGR055-060)
5” (127mm) (AGR065-070)
VICTAULIC CONNECTIONS
FURNISHED WITH GROOVES
FOR VICTAULIC COUPLINGS
BY OTHERS
CONTROL BOX
AT THIS END
OF UNIT
INLET
COMPRESSOR # 1
AIR DISCHARGE
POWER ENTRY
LOCATION
THIS SIDE ONLY
(A KNOCKOUT IS LOCATED
6” (152mm) BELOW THIS
OPENING FOR MULTIPLE
POWER SUPPLY)
B
A
CONTROL
CENTER
POWER CENTER
88.12
(2238.2)
33.38
(847.3)
5.50
(139.7)
13.12
(333.2)
15.12
(384.0)
CONTROL WIRING
ENTRY KNOCKOUTS
FOR 1/2” (13mm)
CONDUIT, AT BACK
OF CONTROL BOX
ON CONTROL SIDE
78.88
(2003.6)
80.88
(2054.4)
94.00
(2387.6)
X
6.50
(165.1)
31.50
(800.1)
2.5” (63mm) DIAMETER
LIFTING HOLES (4)
(2) PER SIDE AS SHOWN
UNIT ISOLATOR/
MOUNTING HOLE
LOCATIONS (4)
(2) PER SIDE AS SHOWN
2.00
(50.8)
2.00
(50.8)
Y
TYPICAL SPACING FOR 1.0 (25.4)
DIAMETER ISOLATOR/MOUNTING
HOLE LOCATIONS (4)
Z
F
E
AIR DISCHARGE
OPTIONAL
COIL GUARDS
COMPRESSOR # 2
COIL HEADERS
AT THIS END
OF UNIT
NOTE:
1. ALL DIMENSIONS IN INCHES (mm)
2. ALL UNITS HAVE (2) INDEPENDENT
REFRIGERANT CIRCUITS
C
D
OUTLET
EVAPORATOR
2 REFRIGERANT CIRCUITS
AGR Unit Dimensions Center of Gravity Weights Additional Weight
MODEL inch (mm) inch (mm) lb. (kg) for Units with Copper
Number A B C D E F X Y Z Operating Shipping Fin Coils lb (kg)
070AS
96.2
(2444)
91.7
(2329)
60.0
(1525)
23.9
(607)
4.3
(108)
16.0
(406)
45.0
(1143)
41.8
(1062)
38.8
(986)
4755
(2154)
4650
(2106)
830
(375)

Other manuals for McQuay AGR 100AS

Related product manuals