EasyManua.ls Logo

McQuay RAH 077C - Page 72

McQuay RAH 077C
122 pages
Print Icon
To Next Page IconTo Next Page
To Next Page IconTo Next Page
To Previous Page IconTo Previous Page
To Previous Page IconTo Previous Page
Loading...
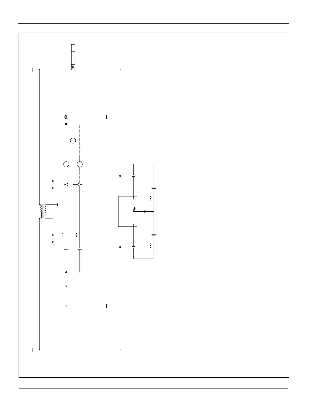
72 McQuay IM 987
Wiring Diagrams
Figure 80: Control Actuator Outputs (CV, Stream, or Hot Water, Plus Economizer)
/1.68/2.68
/4.00 /4.00
NOTES TO FIELD:
1. ALL FIELD MOUNTED RELAYS
MUST HAVE 24VAC CLASS
2 COILS
THE TOTAL VA OF THE FIELD
MOUNTED RELAYS CAN NOT
EXCEED 15 VA
2.
SOURCE 1-8
WIRED INTERNAL
TO MOTHERBOARD
H313-1
H313-2
H315-6
H315-8
H316-7
300
301
302
303
304
305
306
307
308
309
310
311
312
313
314
315
316
317
318
319
320
321
322
323
324
325
326
327
328
329
330
331
332
333
334
207
207
207
364 362
207
207
239
SRC
(FAN_OPERATION)
(EXT_ALARM_SIGNAL)
BO4
BO3
24V SRC
jprs
24V SRC
jprs
115V
24V
CLASS 2
24V SRC
jprs
(OPEN)
BO6
24V SRC
jprs
(ECON/ACT)
(CLOSE)
BO5
1-8
102
1819 20 21
4NO4
3NO3
117115
116
3
2
4
1
86
7
21
6NO6
3-CCW
X-COM
L2
2-CW
L1
5NO5
R26
T1_NT2_115VAC
TB1C TB1C
MCB
MCB
T3_24V T3_COM
TB2TB2
TB2
T3
PL11
+PP
PL11
+PP
PL11
+PP
PL11
+PP
PL11
+PP
MCB
ACT3
+NB
MCB
307A
305A
303A 303B
318A
315A 315B
168C
203B
(Schematic continues on next page.)

Table of Contents

Related product manuals