EasyManua.ls Logo

Mega SSC Series - Guide Dinstallation

Mega SSC Series
47 pages
Print Icon
To Next Page IconTo Next Page
To Next Page IconTo Next Page
To Previous Page IconTo Previous Page
To Previous Page IconTo Previous Page
Loading...
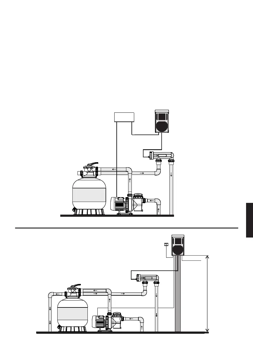
6
Waste
Filter Pump
Suction
(Water from Pool)
Return to Pool
Pump
Return
Pump Cable
Cell Cable
Cell
Power
Supply
Control Box
Pool Light
Cable (if fitted)
1.5meter
Pole
Power Supply
Control Box
Pump Cable
Control Box
Cable
Cell Cable
Pump
Return
Filter Pump
Suction
(Water from Pool)
Return to Pool
Cell
7. Guide d'installation
Unité de commande
1. Sélectionnez un endroit pratique bien aéré à 1 m de l'équipement de
filtration.
2. Les normes australiennes nécessitent que l'unité de commande électrique
ne se trouve pas à moins de 3 m de l'eau de la piscine.
3. Branchez l'alimentation dans une prise étanche adaptée et branchez la
pompe dans la prise d'alimentation du bloc d'alimentation.
4. Montez l'unité de commande à la verticale sur un montant ou un mur à 1,5 m
au-dessus du niveau du sol.
5. L'unité doit être conservée à distance des zones de stockage des produits
acides et des autres produits chimiques. Les vapeurs acides et chimiques
vont corroder les composants électroniques à l'intérieur de l'unité.
6. Elle doit également être maintenue éloignée des sources de chaleur.
Fran aisç
SSC-E SERIES
SSC-T & SSC-TLTSERIES

Related product manuals