EasyManua.ls Logo

Mendota FV34 - Page 18

Mendota FV34
98 pages
Print Icon
To Next Page IconTo Next Page
To Next Page IconTo Next Page
To Previous Page IconTo Previous Page
To Previous Page IconTo Previous Page
Loading...
85-03-01107 FV34 DECOR Page 18
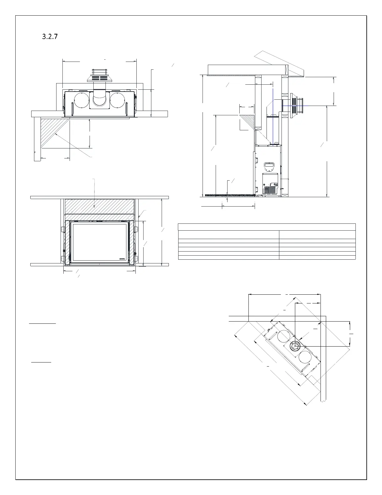
Fireplace Dimensions and Clearances
Figure 3-12 Overall Fireplace Dimensions
ROUGH FRAMING WIDTH
39-1/2" STICK FRAMING or 40-5/8"
SOLID WALL FRAMING
ROUGH FRAMING HEIGHT
36-3/4"
ROUGH FRAMING DEPTH
14-5/8"
MINIMUM FINISHING MATERIALS TOTAL THICKNESS
1"
UNIT BASE TO ROOM CEILING MINIMUM DISTANCE 72"
MINIMUM DISTANCE TO 8" MANTEL ABOVE UNIT BASE
44-3/4"
MINIMUM REQUIRED DIMENSIONS
1
1
2
" THICK
MAXIMUM
44
3
4
UNIT BASE
TO 8" DEEP
MANTEL
16"
MINIMUM
TO SIDE
WALL
72" MINIMUM
UNIT BASE TO CEILING
36
3
4
"
ROUGH FRAMING
HEIGHT
40
5
8
"
ROUGH FRAMING WIDTH
18"
HEARTH PAD
2X4
STUDS
18" MINIMUM TO SOFFIT.
24" TO VINYL SOFFITS.
16"
1
9
5
8
" UNIT
FACE TO
VENT
CENTERLINE
39
1
2
STICK FRAMING WIDTH
40-
5
8
" SOLID WALL FRAMING WIDTH
49
7
8
"
UNIT BASE
TO VENT
CENTER LINE
8
14-
5
8
"
ROUGH FRAMING
DEPTH
24
3
4
1
HATCHED AREAS ARE
NON-COMBUSTIBLEZONES.
PROTRUSIONS IN
HATCHED AREA ARE
ALLOWED.
19-1/2" MIN.
DEPTH
9" TO VENT
PIPE CENTER
32
1
8
"
NON-COMBUSTIBLE ZONE
18" min. Non-combustible Hearth
protection required [SEE HEARTH
PROTECTION PAD R-RATING, PAGE 12]
1
1
2
" HEARTH PAD HEIGHT
(MIN R-1 RATING)
IS REQUIRED!
42
1
2
" MIN
OPENING WIDTH
48" MIN.
UNIT BASE
TO 8" MANTEL
8" MANTEL DEPTH
AT HEIGHTS SHOWN
72" MIN.
TO
ROOM CEILING
CEILING
47" MIN.
ROUGH FRAMING
HEIGHT
42
1
2
" MIN.
ROUGH FRAMING WIDTH
0"
6"
7"
8"
9"
10"
11"
12"
13"
HEIGHT ABOVE
CONVECTION AIR OPENING
DISTANCE FROM
FIREPLACE FACE
42-1/2"
TO CENTERLINE
OF VENT CAP
24" MIN
TO VINYL SOFFIT
(18" MIN TO WOOD
OR METAL SOFFIT)
14"
15"
5
13
16
"
6
1
4
"
6
11
16
"
FV-41 GAS DIRECT VENT FIREPLACE
GENERAL APPLIANCE SPECIFICATIONS
0"
16"
TO GUIDE EDGE
MINIMUM ROUGH FRAMING DIMENSIONS
HEIGHT 47"
WIDTH
42-1/2"
DEPTH
19-1/2"
FROM UNIT BASE
TO ROOM CEILING
72"
FROM UNIT BASE
TO 8" MANTEL
48"
ADJACENT WALLS:
A wall perpendicular to and in front of this fireplace's
glass door surface must be at least 16 inches from the
side edges of the facing guide.
A wall at 45° to the glass surface and starting at this
Fireplace's outer edge is permitted. Projections behind
this wall (in shaded area) are permitted.
49
3
4
"
49
3
4
"
70
5
16
"
17
11
16
"
17
11
16
"
7
1
8
"
7
9
16
"
8"
16"
17"
18"
4747" MIN.
35-1/2"
34
7
8
"
19
1
8
"
FROM UNIT BASE TO
UNIT ENCLOSURE CEILING
50"
50" MIN.
UNIT FLOOR
TO ENCLOSURE
CEILING
1"
2"
3"
4"
5"
5
5
16
"
4
7
8
"
4
7
16
"
4"
3
9
16
"
3
1
8
"
2
11
16
"
2
1
4
"
1
13
16
"
1
3
8
"
15
16
"
1
2
"
NON COMBUSTIBLE FACING
NOTE: For every 1" this fireplace is raised off the floor,
the non-combustible hearth protection pad may be reduced
by 2". If this fireplace is raised off the floor more than 6",
No hearth protection pad is required.
FIREPLACE FACE MUST BE COVERED W/
NONCOMBUSTIBLE FACING IN THIS AREA.
A COMBUSTIBLE MANTEL ONLY ALLOWED IN
THIS AREA IF INSTALLED OVER
NON-COMBUSTIBLE FACING MATERIAL.
CAUTION: The distance from floor level to the centerline of the vent
cap is given based on Simpson Duravent GS components. If using
vent components of other brands do not assume that the
measurement given here is applicable. Verify the distance to
centerline of vencap by measuring the components you will be using.
Figure 3-13 Corner Installation Dimensions
40-5/8" MIN.
ROUGH FRAMING
WIDTH
16
7
16
"
14
5
8
"
MIN
14
5
8
"
MIN
16
7
16
"
32.9475
46
5
8
"
65
7
8
"
40-5/8"
MIN
40-5/8" MIN
ROUGH
FRAMING
WIDTH
23
1
4
"
18
5
16

Related product manuals